项目地址:中国•深圳
项目面积:58㎡
设计风格:现代简约
设计单位:迪尚设计
软装设计:优米软装
施工单位:壹米筑家
摄 影:艾 荣
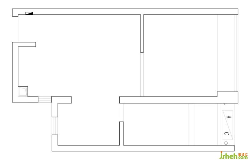
1、拆除入户部分墙体,打造开放式厨房;
2、客餐厅一体化设计,动线更合理,视野更开阔;
3、拆除原房间墙体,打造音乐房,隔出洗衣区;
4、 卫生间将洗漱台移出,玻璃隔断实现干湿分区。
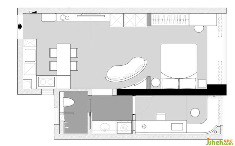
开放式设计,使得空间的可视范围得到远超过原户型的空间享受,简单舒适,大面积白色给整个空间带来了清爽舒适的氛围。
以隐藏式推拉门作为客厅与主卧分界,以白色和灰色为基调,增加空间层次感,视线可穿透至窗外的景色,感受四季更替。


开放格展示艺术品,不仅没有破坏整体协调感,使得空间轻微分离却紧紧相依,客厅的家具颜色在选择上保持统一,显得空间尤为整洁。


开放式的厨房与餐厅融为一体,在造型和色彩的设计与选择上,都贴进生活,在这质朴的空间里,更加简洁。
