项目 / 名称
Project Name / Egret
项目 / 面积
Project Area / 185.5㎡
项目 / 时间
Project Time / 2021年
设计 / 成都壹阁设计
Design / ONE SPACE DESIGN
设计 / 创意总监
Creative Director / Denny Ho & 钟莉
设计 / 设计总监
Design Director / 李姝霖
摄影 / 八尺口
Photographer / 八尺口
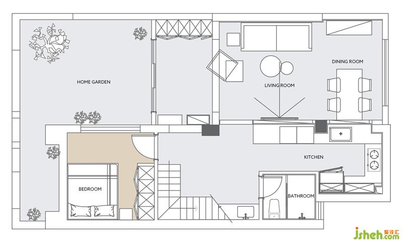
1F
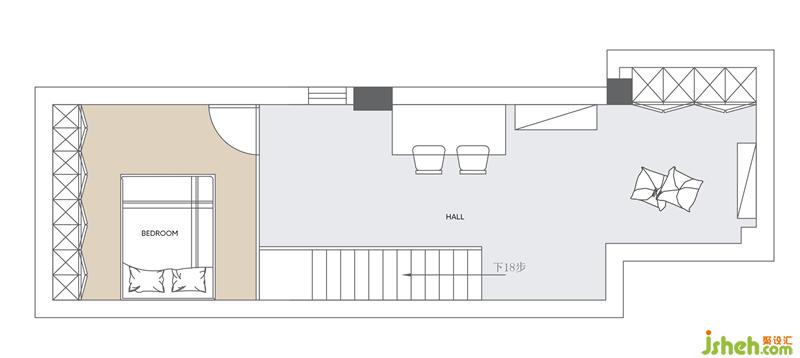
2F
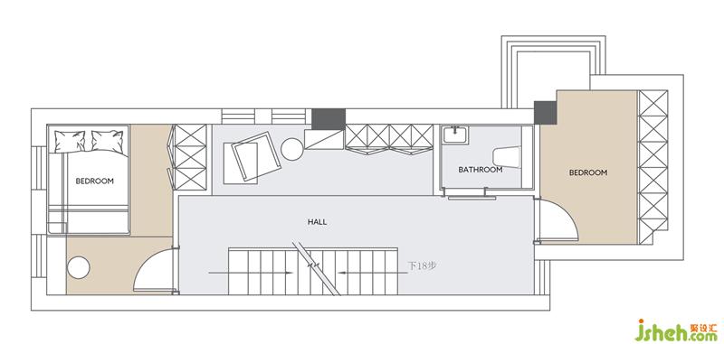
3F
科学与艺术的融合者

“重要的不是我把握自然,而是我与它一同生活”这是毕加索曾说过的一句话。时常感受城市的喧嚣后大多数人更加向往的是来自自然的宁静与平淡。将自然融入生活,如飞鸟一般自由自在。

大面积的留白,木制元素的加入,整个空间家居设计干净又通透。没有过多颜色的掺入,用最朴素的方式呈现出一种临近大自然的最真实感受。

