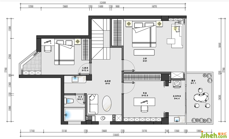
二楼空间主要作为休息空间,一个小的起居室,给了更多的温馨感。对于起居室的功能考虑,家居设计对于过道的合理过度,对于楼梯的整体衔接,楼梯背景成了整个区域的焦点,整木的结合,奢石的运用,共同打造空间的层次感。给二楼一个舒适的休闲空间。
卧室的设计更多的采用温馨的材质来体现空间,精美的木地板,极具质感的硬包皮革,以及暖灰的墙板,细腻的艺术涂料,共同格勒卧室空间的格调。儿童房的设计以蓝色和灰色为主,细腻的小山,给人无线遐想的太空图案,给孩子一个美丽健康的居住空间,快乐的成长。
本项目从设计到最终落地经历了11个月,在业主的积极配合下最终完美落地。



更多家居设计请关注聚设汇装修平台: