欢迎光临聚设汇,装修找设计就上聚设汇!
   咨询电话:15602987227
登录    注册
聚设汇
首页 > 家装 > Visual Acoustics 视觉声学

Visual Acoustics 视觉声学

现在的你是蓝色的平静 沉郁在梦中 所有依海倚天而生的都爱你 

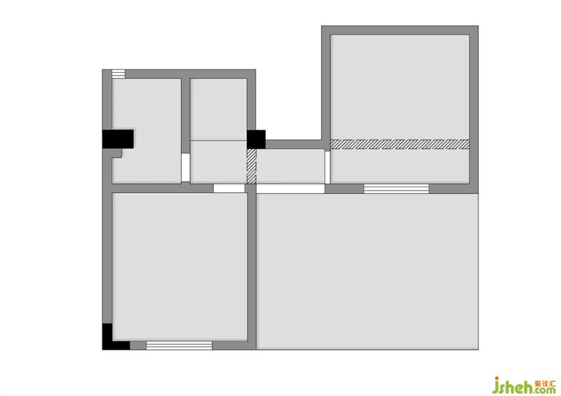
平面结构 一楼

GROUND FLOOR

平面结构 二楼

SECOND FLOOR

更多德阳家居设计请关注

田园装饰YANG空间设计主理人

设计收费:150 元/平             

擅长类型: 家居,豪宅,别墅

在线咨询

扫描二维码关注我们的微信

深圳市聚设汇文化传媒有限公司
主编热线:15602987227
总部:深圳市罗湖区梨园路128号宝能汽车大楼416单元
佛山、东莞、成都、重庆、福州、厦门、南昌、武汉、
杭州、苏州、温州、郑州、长春、沈阳、贵阳、柳州、
哈尔滨、九江等城市设立办事处
© 2017-2021 Jsheh.com 版权所有 粤ICP备17079093号
展开
回到顶部