欢迎光临聚设汇,装修找设计就上聚设汇!
   咨询电话:15602987227
登录    注册
聚设汇
首页 > 家装 > 浮生若梦,终日皆是欢愉

浮生若梦,终日皆是欢愉

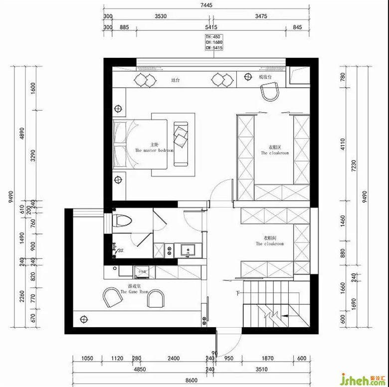
主卧空间装修公司在床头背景用部分的木饰面与客厅餐厅公共区域相呼应,硬包墙布的设计增加床头的舒适度,竖向的分隔与电视墙面造型相平衡,在墙布的素雅的映衬下,顶面无主灯的现代照明设计让空间更具高级感。

亚町设计

设计收费:300 元/平             

擅长类型: 办公室,商业,住宅家居

在线咨询

扫描二维码关注我们的微信

深圳市聚设汇文化传媒有限公司
主编热线:15602987227
总部:深圳市罗湖区梨园路128号宝能汽车大楼416单元
佛山、东莞、成都、重庆、福州、厦门、南昌、武汉、
杭州、苏州、温州、郑州、长春、沈阳、贵阳、柳州、
哈尔滨、九江等城市设立办事处
© 2017-2021 Jsheh.com 版权所有 粤ICP备17079093号
展开
回到顶部