欢迎光临聚设汇,装修找设计就上聚设汇!
   咨询电话:15602987227
登录    注册
聚设汇
首页 > 家装 > 诠释别样的时代摩登

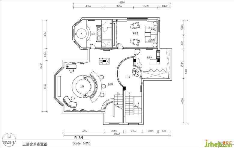
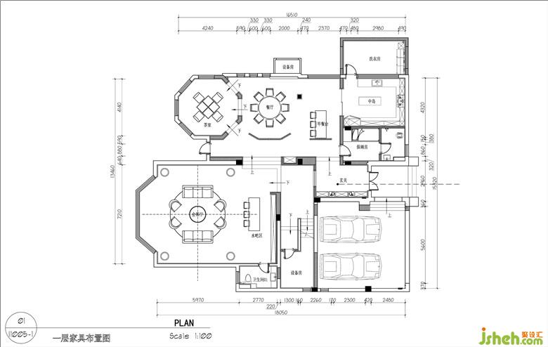
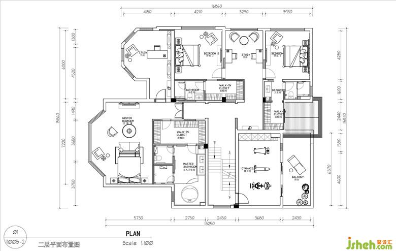
诠释别样的时代摩登

室内设计师每个局部

每个细节

每一款拼花

每一个收口

每一款灯的瓦数、照度、色温

都代表匠人们的精细与执拗

室内设计师说

优雅是一种气质

更是一种心态

坐在这里弹奏一首优美的乐章

必是一件极其享受的事

……

亚町设计

设计收费:300 元/平             

擅长类型: 办公室,商业,住宅家居

在线咨询

扫描二维码关注我们的微信

深圳市聚设汇文化传媒有限公司
主编热线:15602987227
总部:深圳市罗湖区梨园路128号宝能汽车大楼416单元
佛山、东莞、成都、重庆、福州、厦门、南昌、武汉、
杭州、苏州、温州、郑州、长春、沈阳、贵阳、柳州、
哈尔滨、九江等城市设立办事处
© 2017-2021 Jsheh.com 版权所有 粤ICP备17079093号
展开
回到顶部