房屋位置丨深圳·前海东岸
设计公司:深圳涵瑜室内设计
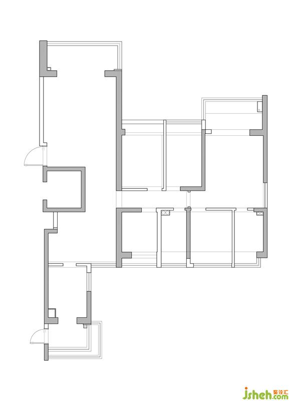
面积户型丨160㎡(三室)
常住成员丨四口之家
主要材质丨微水泥、木材
① 客厅阳台处抬高做了休闲地台,模糊的空间界限使客厅更显开阔,为小朋友与两只喵星人提供了玩耍天地。
② 餐厅与厨房空间打通,形成开放式的一体化餐厨区,并在餐边柜处实现了屋主最常用的咖啡制作区。
③ 原本四房的格局改为三房,两个次卧拆除墙体合二为一,为两个孩子设置了超大的玩耍空间与成长天地;优化了主卧套间的结构,阳台的大落地窗与天窗带来绝佳的阳光。利用玻璃门区隔卫浴空间,形成通透开阔的空间尺度。
Small and exquisite museum treasures
治愈城堡 小而精致的博物宝藏
归家入门,如同打开精致古朴的宝箱,琳琅满目的摆件与藏品,像是进入一座承载记忆故事的奇妙博物馆,处处散发着对生活的探索与热爱的余香。
家是我们对于世界的理解与表达。这座家的博物馆,属于一对青年夫妇和他们的两个小Baby以及两只喵星人,女主曾经常年做古董生意,家中众多陈列也只是冰山一角,精致的藏品也是他们对艺术生活与细节美感的极致追求。
客厅的核心区是一面陈列柜,源自于中外各地的器皿物件静静地在此大放异彩,成为家中特殊的记忆符号。一旁甜蜜的肖像画作,是友人赠予屋主夫妇的礼物,“来福”和“咪咪”也位列其中,更为空间增添了几分随性与趣味。

沙发背后的书柜墙用于展示和收纳。盛满阳光与温暖的地台溢出阳光于书本之上。配上最爱的红酒,身边蜷缩着软绵绵毛茸茸的猫咪,孩子在阳光下搭着积木……空间向外延展带来的释怀感和被温暖拥抱的温馨放松都在当下被实现。

Fireworks world
四时三餐 烟火人间


