房屋位置丨东海国际公寓
设计公司:深圳涵瑜室内设计
面积户型丨148㎡(2室)
常住成员丨单身独居
主要材质丨木饰面、金属、石材
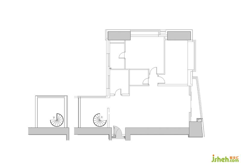
▲ 原始户型
入户处通往琴房与阁楼之间有墙体分割,动线结构比较松散;次卧的拐角造成空间浪费;卫生间与客厅区域利用率不高。
▲ 平面方案
① 拆除分割客餐厅与钢琴区的墙体,打造贯通式空间,让室内格局更显开放。
② 优化次卧与公卫格局,提高空间利用率的同时,也为客厅留出更开阔的区域。
③ 客厅采用轴线对称的布局方式,改变卧室门的位置,赋予了空间浪漫的仪式感。

以温润素白的主基调,作为空间氛围的起点,将现代法式风进行多元化演绎,精致的雕花造型石膏吊顶,秩序与结构的结合。源自意大利品牌的Catellani & Smith吊灯,诉诸着空间的艺术氛围,串联时光,自由流转……

用现代的设计手法,采用开放式布局,选用Tacchini和Gubi米白色沙发围合出一种优雅浪漫的设计共感,在这里,现代家具被赋予更多质感,与屋主喜好的精致饰品化身为艺术新潮。更贴近屋主对品质生活与新风尚的理解。

对生活的体察入微,是屋主赋予空间的浪漫。自然肌理的大理石茶几、温馨的木地板与简洁利落的墙体,让空间更加敞亮开阔的同时动线上也更为流畅舒适。