设计团队 | 深圳涵瑜室内设计
房屋位置丨 香山美墅果岭
面积户型丨 192㎡(5 室)
常住成员丨 2夫妻+1女儿+1老人
主要材质丨 木饰面、瓷砖、玻璃
主题配色丨 灰、白
这是一个即将迎来第二个宝宝的四口之家。屋主夫妻对于居家生活有着较高的品质追求,偏向于简约美式,希望可以在家中找到想要的归属感,因此空间设计以灰白色定调,塑造出悠闲放松的气氛。家具与软装的置入交织出空间的纯净与安 逸气息。
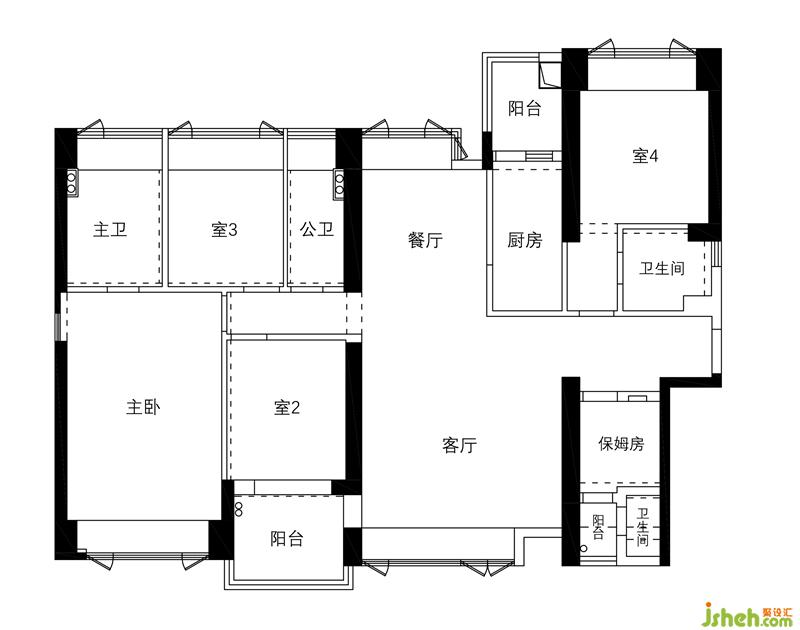
▲ 户型图
户型动线过于局限死板。入户区域非常局促,玄关处利用率低下。通往卧室的过道狭窄,体验感较差。传统餐厅和厨房不能满足家庭需求;原始户型就有五个房间,我们基于业主的生活习惯留了三个房间作为起居室,其余作为家人的功能房使用。
▲ 平面图
① 将入户区右侧的房间全部打通,墙体拆除,并内移做了玻璃门隔断,入户区域瞬间开阔大气;
② 连通餐厅和厨房区域,增加岛台,为日常多样化的烹饪带来更多可能性,提高了居住幸福感;
③ 改造了原来的保姆房,兼储物和洗衣房功能。并做了独立的玄关鞋柜,深化了生活仪式感;
④ 将通往卧室的过道两旁的卧室及公卫墙体做了内移,取缔了之前压抑局促的过道;
⑤ 原先主卧的空间比例不合适,取一部分的空间作为衣帽间,流畅了生活动线;
玄关
入户即开阔,考虑到家庭人口因素,玄关部分没有做隔断,将左边杂物间的两面墙做了储物柜和鞋柜,避免入口拥堵同时,还增加了许多收纳空间。回到家,迎接你的是一个完全包容和简朴的栖息空间,从进门那一刻便收获一份豁然的心境。
书房
客厅


客厅简单的黑白灰色系,简单的线条丰盈客厅的立体感,配以米白色的布艺沙发,深灰色单椅,以及八边形茶几,家具贯穿于空间的情致之中,增强了客厅的丰富度,赋予空间视觉层次感。

朦胧悠远的艺术挂画,映衬出客厅强烈的艺术氛围。每一个单品、每一种材质都有自己独特的语言,娓娓道来地和我们讲述一个艺术与生活的故事。
平静柔和的灰色,不强烈,不刺眼,不会给人造成视觉上的冲突。这些并不艳丽的颜色有种混沌不明的感觉。总之给人的感觉就是好看又舒服,温柔优雅的禅静中,又带着高级的质感。
