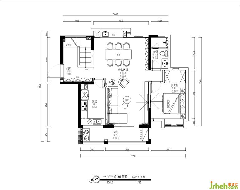
一楼除开了公共空间,还预留多了一个长辈房,家中长辈偶尔会过来小住,长辈房也预留了电视,这样几代人住一起都有自己的空间,相互不干扰。
二楼是主人家一家四口的私人空间,有平时男主人打游戏及孩子们玩耍的书房兼休息室,家居设计平时孩子们都会在这个空间里读书,玩耍。男主人偶尔居家办公,带上孩子们一起打电动等。


主人房经过改造衣帽间跟洗手间单独分开,家居设计即增加了衣帽间的容量,又解决了衣帽间进洗手间引起的潮湿问题,一举两得。阳台封起来作为了房间的一部分,使得主人房更加宽敞舒适。取消了传统的挂壁电视,改成可移动的投影。




儿童房则预留了多一个学习桌的空间,家居设计让孩子们能有自己独立的学习空间。

更多家居设计请关注聚设汇装修平台: