欢迎光临聚设汇,装修找设计就上聚设汇!
   咨询电话:15602987227
登录    注册
聚设汇
首页 > 商业 > 中牟华强城样板间设计

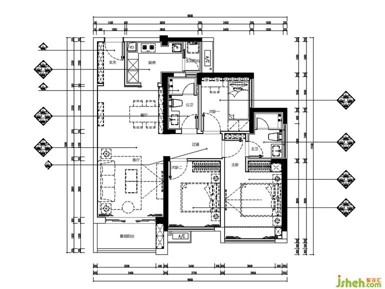
中牟华强城样板间设计

儿童房表现出丰沛而有趣的活力,样板间设计这里既有丰富的个性,也有俏皮的想法。

多功能开放式的书房,样板间设计打破了原有书桌椅的布局,一个懒人沙发,一本随手而放的杂志,烘托出房间独有的舒适感。

更多样板间设计请关注聚设汇装修平台:

深圳市新派空间设计顾问有限公司

设计收费:600 元/平             

擅长类型: 地产、豪宅

在线咨询

扫描二维码关注我们的微信

深圳市聚设汇文化传媒有限公司
主编热线:15602987227
总部:深圳市罗湖区梨园路128号宝能汽车大楼416单元
佛山、东莞、成都、重庆、福州、厦门、南昌、武汉、
杭州、苏州、温州、郑州、长春、沈阳、贵阳、柳州、
哈尔滨、九江等城市设立办事处
© 2017-2021 Jsheh.com 版权所有 粤ICP备17079093号
展开
回到顶部