欢迎光临聚设汇,装修找设计就上聚设汇!
   咨询电话:15602987227
登录    注册
聚设汇
首页 > 家装 > 福星花园旧房改造设计

福星花园旧房改造设计

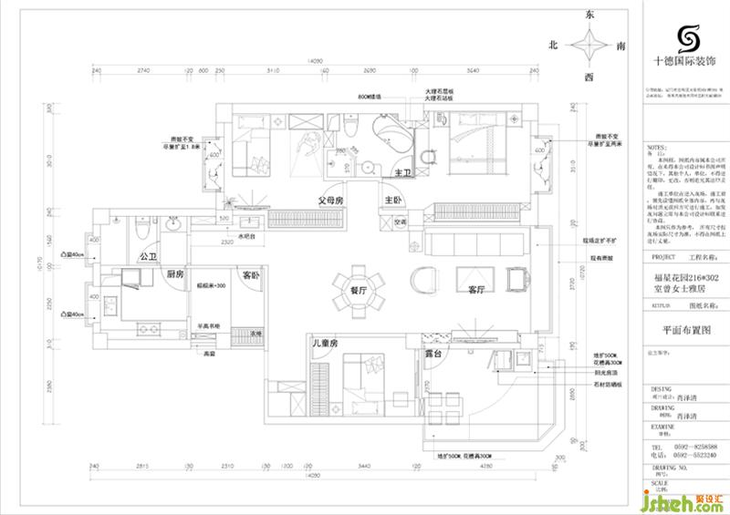
主卧米白色的皮质床靠在咖色的硬包床头背景墙上,两边加上金属线条装饰使整个空间充满了浪漫优雅的气息。电视背景采用一块天然大理石加一组悬空地台。

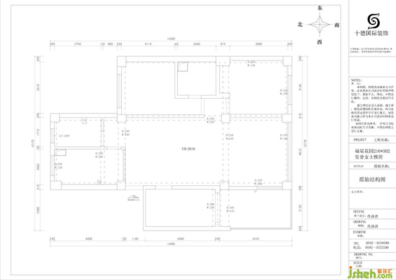
旧房改造设计从旁边推开一扇门后,隐匿在此的秘密花园,是城市角落里的一处自在。

更多旧房改造设计请关注聚设汇装修平台:

厦门十德好康设计工程有限公司

设计收费:面议 元/平             

擅长类型: 家居

在线咨询

扫描二维码关注我们的微信

深圳市聚设汇文化传媒有限公司
主编热线:15602987227
总部:深圳市罗湖区梨园路128号宝能汽车大楼416单元
佛山、东莞、成都、重庆、福州、厦门、南昌、武汉、
杭州、苏州、温州、郑州、长春、沈阳、贵阳、柳州、
哈尔滨、九江等城市设立办事处
© 2017-2021 Jsheh.com 版权所有 粤ICP备17079093号
展开
回到顶部