项目地址 | 广东深圳
房子面积 | 180㎡
户型 | 五室三厅两卫
设计风格 | 新中式
设计 | 深蓝设计
摄影 | 蓝灰
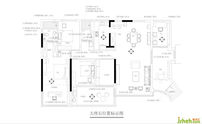
本案为古典新中式风格。在设计前期,我们与业主进行大量的沟通,在大面积使用中式元素时,怎么样可以保持空间的韵味却又透露出新潮的气息?为此,在软装上我们运用了大量的格栅元素和小面积的明亮色彩进行点缀,古色古香的空间里却又充满活力,灵动十足。下面,我们一起感受一下这份古韵与灵动吧。
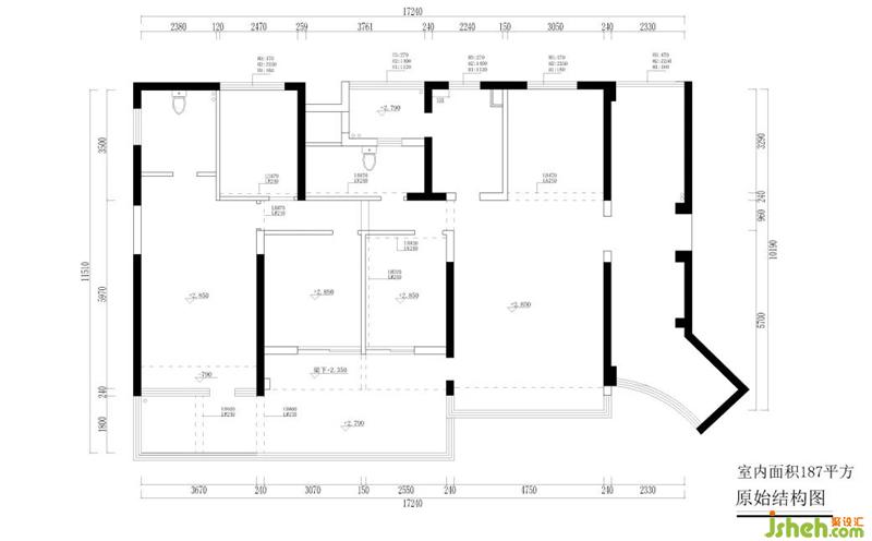
硬装改造
① 入户花园改造成茶室和杂物间,提高空间利用率,增加整个空间的收纳;
② 打通厨房与餐厅之间的墙壁,设置岛台作为厨房与餐厅的过渡线;
③ 调整厨房与公卫的格局,将卫生间的入门处移动至左边。

茶室
深处繁华都市、疲于奔波的我们,能拥有一个属于自己的忘忧茶馆,留一点独处冥想的时间给自己,没有功利目的地随意翻翻书,喝喝茶,让这方寸之地成为免于外界忧烦的桃源,是一件非常美好的事。
室内设计师
推开玄关大门,左边是茶室和杂物间,右边便是古韵十足的书房。
设计师根据业主的需求和利用空间的优势,将入户花园改造成茶室和杂物间,大大提高空间的利用率,增加收纳空间;设置深棕木色置物柜进行区域划分。
色彩上与整个空间保持一致,深棕木色的茶几、天花格栅、置物柜,稳重而不失韵味;天青色的山水画设置成杂物间的折叠门,营造一种“千山鸟飞绝,万径人踪灭”的意境,安静、放空思想、不被外界打扰。
“一壶清茶 一身尘灰,一念来回度余生无悔,一场春秋 生生灭灭 浮华是非,待花开之时再话一世沉醉”
茶室最大的亮点要数背景墙,利用灰泥做成的小漩涡,搭配实木旋涡墙饰,就像水滴掉进水里形成的涟漪,与对面的天青色山水画折叠门相呼应,静态结合,使茶室不过于沉闷。
书房
走出茶室,便来到古韵十足的书房。
书房整面墙打造成深棕木书柜,把书柜门设计成格栅形式,使空间脱离沉闷气氛,多了份活泼;素雅的灯具与挂画中和空间的饱和度;“但识琴中趣,何劳弦上音”,抚琴而歌,是我国关于传统美学的具体形式的最初印象之一,而古琴将中国传统美学中对意境的追求发挥到极致;闲暇时,喝一杯清茶,弹一曲古筝,感受典雅风韵,修身养性。
客厅
室内设计师
