项目名称:桃源别墅装饰
项目设计:深圳漾空间设计有限公司
软装实施:深圳漾空间设计有限公司
项目地点:深圳中兴和园别墅
项目面积:630平
装修风格:新中式风
家的味道,
是团聚时的忘我欢歌。
家的味道,
就是柴米油盐中的欢欣无恙。
只要家人都在,只要充满亲情,无论是竹篱茅舍,还是在高屋华堂,这就是家。就算日子平淡,能看着亲人彼此间的笑脸,就永远看不厌。
本案业主是一位事业有成、注重生活品质的企业家,别墅装饰希望在快节奏的深圳能有一个沉淀下来的休憩之所,可以和家人共度温馨的休闲时光。
专享海景别墅,每一楼都有不同的生活方式,家人各得其所。并在基础生活之上规划了多元的生活空间——健身房、茶室、花园、书法间、收藏室,自在而居,体验生活的美好。
业主需求
❶十分重视负一楼空间,需要具备会客、会议、洽谈功能,同时还要保有私密性。
➋倾向沉稳但有内涵的设计风格,整体要低调又不失品位。
➌和孩子们分层居住,拥有自己的空间。让家能够给孩子提供艺术的学习氛围。
❹女业主对生活的烟火气十分看重,希望将厨房的空间着重改造和设计。
❺套房式居住体验,卧室和衣帽间浴室都要有度假的享受。
设计思路
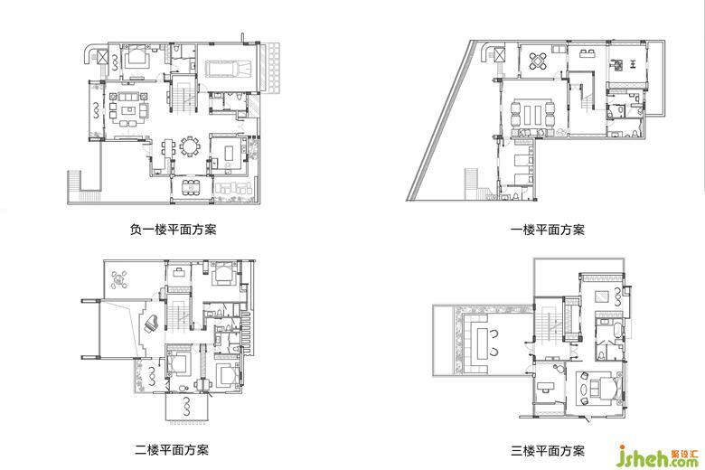
空间改造解析:
❶负一楼设计健身房、茶室、储藏室、麻将室等多功能会客空间,增加室内利用率。独立的茶室可以看向前后两边庭院,视野开阔通透。
➋一楼入户设置洗漱区域,方便回家后换鞋、洗手、衣帽间更换家居服。
➌扩大了一楼中厨空间,将小储物间改成西厨空间,别墅装饰更改了户外楼梯位置,让一楼平台更加开阔。
➍二楼平台做了一个小钢琴区,在这里演奏楼上楼下都可以听到悦耳的琴声。
❺三楼是主卧空间,设计了露台、超大衣帽间、休闲室、四分离浴室,居住体验更好。
实景图片
01 客厅

新中式风格给家带来了许多沉稳的感觉,别墅装饰设计师以儒家思想文化基础做了整个空间的设计。儒家文化最重要的设计元素为回形纹,回形纹代表着吉祥如意。这与儒家文化的核心-“仁”也是相符合的。同时,通过整体环境的营造,自然得将回形纹的设计元素融入设计中,从而避免了设计元素的简单堆砌。

选择了轻盈现代感的家居而非传统中式,让空间看起来更加年轻。休闲沙发是摇摇椅,扶手编制牛皮提升空间精致度。

一层大挑空视线开阔,并可以饱览窗外的海景。仿云彩的电视墙,山水意境的沙发背景,选择了木质、皮质、金属等材质,别墅装饰让整个空间充满中国古典之美。