项目名称:尺度家装设计
项目设计:深圳漾空间设计有限公司
软装实施:深圳漾空间设计有限公司
项目地点:深圳润府三期
项目面积:187平
装修风格:侘寂风
“谨慎地拥有,珍惜地使用,果断地舍弃”
本案女业主正是这么一位主张「极简生活」的人
确实,生活的主角不是任何物品,而是「人」本身
这样的极简主张,不仅仅体现在对家居的要求里,更贯穿到了对孩子的教育中。
在培养两个孩子的成长过程里,比起过早的接触电子产品和令人眼花缭乱的玩具,女业主更希望能陪伴他们更多地探索世界。
一家人经常一起去露营、去野餐,去触摸蓝天与绿地;去阅读、去旅游、去认识这个世界~
part.1 业主需求
❶本案业主是一对年轻夫妻,他们有两个可爱的孩子,分别是乖巧的大女儿和调皮的小儿子,父母也在一起住,帮忙带娃。
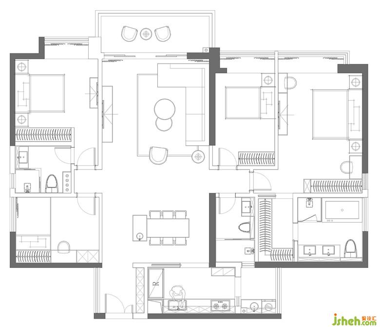
➋这次装修最初的原因是想更换公共区域的瓷砖,因为瓷砖之间有缝隙不美观且存在卫生死角……随着需求的梳理,越来越多的小问题被挖掘出来,于是决定整屋翻新,顺便转变室内装修风格~但考虑到格局并不需要调整,于是要求设计时尽量不大改。
➌女业主偏爱极简、侘寂的风格,想让空间尽量开阔、通透,不喜欢过多的装饰,也不需要太多收纳,每个房间有一排衣柜足以。材料想用微水泥,便捷度和环保性都较高。
part.2 设计思路
空间改造解析:
❶硬装方面,全房地面、墙面、顶面都使用微水泥覆盖,解决了不同材质之间存在明显缝隙的问题,同时,相同材质的使用令空间更有延伸感,视觉上放大空间。
➋软装方面,重点放在家具的选品和尺寸把控上,「少而精」是核心原则,通过必要且合适的家具共同营造舒适、极简的家居氛围。
part.3 实景图片
01 传送带
灰色、白色与原木搭配,低调沉稳又大气,通顶大立柜,让一家四口的鞋物收纳不在话下,集美感和功能性于一体,大面积白色也充分延伸了空间感。
02 观影自由


客厅舍弃繁杂的堆砌,以极简的设计手法打造出清新质感,细细品味,点缀之处都十分出彩,在整体通透的视觉效果上使人眼前一亮。不规则椅子,沙发上绿色、米白色抱枕,均为家里增添丝丝亮点。再铺上一张米色地毯,增加客厅层次感。

脏橘色点缀为现代简约的家带来时尚氛围,圆形桌更是给严肃设计带来一丝活泼跳跃之感。家装设计使用弧形元素贯穿整个客厅,加之不同形状几何软装的叠化设计,弱化水泥色带来的严肃感,反倒给这个家带来温馨感觉~