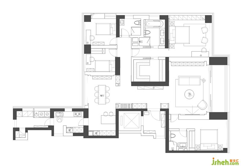
宽大的落地窗让日光可以自在随意的撒进室内,倚窗而立的是Poliform书桌椅,一体式储物柜与书桌设计,错落有致的造型,吸睛又不突兀的色彩组合,打造美好安然的卧室空间。


女儿房墙面留白处理,搭配艺术家村上隆的作品作为装饰画,床品点缀女儿喜欢的粉色,床尾加设ESPERO(埃斯佩罗)定制儿童书柜与书桌,提升空间功能性。深圳豪宅设计衣柜柜门是定制巴士门,轨迹范围小,平移开合不占空间,美观大气又极具艺术性。在光影的调和下,静谧柔美的基调延伸至整个空间。

另一女儿房采用ESPERO(埃斯佩罗)定制一体床的设计,深圳豪宅设计以定制拼色护墙板作为床头背景,节省了床头靠背空间,令床尾能加设书柜与书桌,满足空间功能性。粉色、紫色与原木色的色彩组合,在日光下散发着温暖的气息。
暖灰色纹理大床搭配高级灰硬包背景墙,以黑色不锈钢线条为装饰,删繁就简,展现极简现代的艺术氛围。深圳豪宅设计温煦的阳光透过轻纱映暖软装色调,柔软了灰度的冷硬感,为空间注入优雅内敛的韵味。
一字型的厨房设计,从地砖、墙砖到橱柜,从材质、选型到颜色搭配,深圳豪宅设计淡雅的白色充斥着整个空间,搭配黑边线条点缀,打造时尚的现代极简感。
主卫选材柔和了纹理与颜色,采用暖色系展现洁净清爽的感觉,双台盆的设计令空间大气有质感,将精致和舒适发挥到了极致。

次卫以玻璃隔断作为干湿分离,地面使用大理石与瓷砖进行分区,深圳豪宅设计墙面加设吊柜,收纳卫生用品及浴巾,增加卫生间收纳空间。窗帘选用防水百叶帘,美观又实用。
更多深圳豪宅设计请关注