项目名称:朗澈
项目设计:深圳漾空间设计有限公司
软装实施:深圳漾空间设计有限公司
项目地点:深圳南山华润城润府
项目面积:190平
装修风格:现代简约
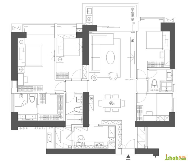
本案是华润城润府精装房改造项目,交房时硬装已完工,厨房和卫浴间全部装好,其余空间的地面已铺贴好,墙面则为大白墙,从技术层面考虑,软装设计的可发挥空间还是挺大的~
改造前:
1、入户玄关面积较小,收纳空间不足;动线不流畅,需要多次开关门。
2、餐厅缺少不影响整体美观的前提下做整面餐边柜的空间,收纳不足。
3、主卧衣帽间较小,主卫不需要浴缸,两者可以协调分配。
改造后:
1、取消玄关进入客厅的大门,改造周边墙体,增设入户玄关收纳柜,增加收纳空间,同时在电视墙右侧增设屏风,化解一进大门直冲阳台的不利风水。
2、取消厨房平开门,加设向内平移的推拉门,于厨房与餐厅连接处加设整面餐边柜,于厨房出口处加设半高的成品餐边柜,增加餐厅收纳空间。
3、拆除主卫浴缸,调整主卫洁具位置,缩小主卫空间并顺势增加衣帽间空间。
设计师以无主灯设计为基础,通过极简的磁吸灯、防炫目的射灯、烘托氛围的反灯槽等多种光源形式丰富空间层次感,搭配哑光材质的主材,让室内空间更显高级。
同时,在重点立面造型处采用多材质虚实结合的设计手法,增添空间趣味性;收纳方面,改造入户、厨房及衣帽间区域,沿墙体顺势增加收纳柜;色彩方面,在黑白灰基调上加入灰咖色,提升空间气质;生活阳台改造成小动物们的小窝窝,留有水位,方便洗澡澡。
步入室内,明亮开阔的客厅空间跃入眼帘。灰咖色木格栅的紧凑感和浅色纹理岩板+护墙板的疏朗感,构成了张弛有度的设计效果,打破空间的沉闷无趣,使家居生活更加惬意舒适。
客厅取消了华丽的吊灯,以极简的磁吸灯、防炫目的射灯、烘托氛围的反灯槽打造无主灯设计。自然舒适的灯光轻轻晕开,整个空间变得十分雅致休闲,身处其间便有种身心放松、卸下疲惫之感,这里是一切温柔的开端。

时尚个性的黑白灰基底,穿插使用优雅的灰咖色,构成了客厅空间的色彩基础。电视背景墙富有层次,由大理石+木搁栅+混油护墙板构成,自下而上根据黄金比例进行造型设计。

沙发背景墙由清晰纹理的浅色岩板+灰咖色木格栅及硬包构成,其上不再以挂画作为装饰,而是由一对圆形铁艺相互叠加凸显局部亮点。

坐感舒适的深灰色L型真皮沙发,搭配浅灰色窗帘和浅灰咖色几何图案地毯,在浅灰色地砖和背景墙的衬托下,有一种远离城市喧嚣的休闲氛围。