项目名称:浅静
项目设计:深圳漾空间设计有限公司
软装实施:深圳漾空间设计有限公司
项目地点:深圳波托菲诺香山里
项目面积:198平
装修风格:现代简约
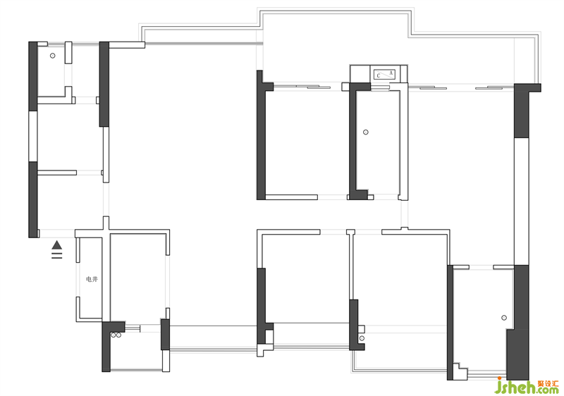
原始结构
平面图
“买房看景观、设计看眼缘”,听上去似乎不太符合银行人的人设?但仔细一想,却有几分透过现象看本质的意思。本案业主对房子的户型、朝向、景观等都比较满意,希望装修后既能有超强的收纳功能,看上去又是简约大气、上档次的。
在装修初期便收到了很多朋友推荐的设计师信息,看过作品后也挑选了两三位设计师详谈。相比于初步方案规划而言,业主更看重设计师的理念及专注方向,做好设计图并不难,实景落地才是真正的考验!于是,合作水到渠成。


室内以简练、优雅、舒适为设计核心,通过材质、色彩、线条等元素,构建清爽、舒适的生活空间。公共区域地面通铺大理石纹砖,天花以周边吊顶形式将空调与筒灯藏于其内,立面则以暖灰色皮质硬包与浅色大理石纹砖作为材质及颜色之间的碰撞,凸显空间开阔、大气之感。

电视背景墙以大理石纹砖依次叠加并重组线条感为设计亮点。纹路自然延展、右侧恰好形成梯度线条,与定制的条形电视柜组合成立体的空间。清新的色彩搭配让室内尽显轻松、静谧,小瓶绿植更让空间充满舒适的居家氛围。

