项目基本信息——
项目名称:境域
项目设计:深圳漾空间设计有限公司
软装实施:深圳漾空间设计有限公司
项目地点:深圳湾公馆
项目面积:160平
装修风格:现代工业
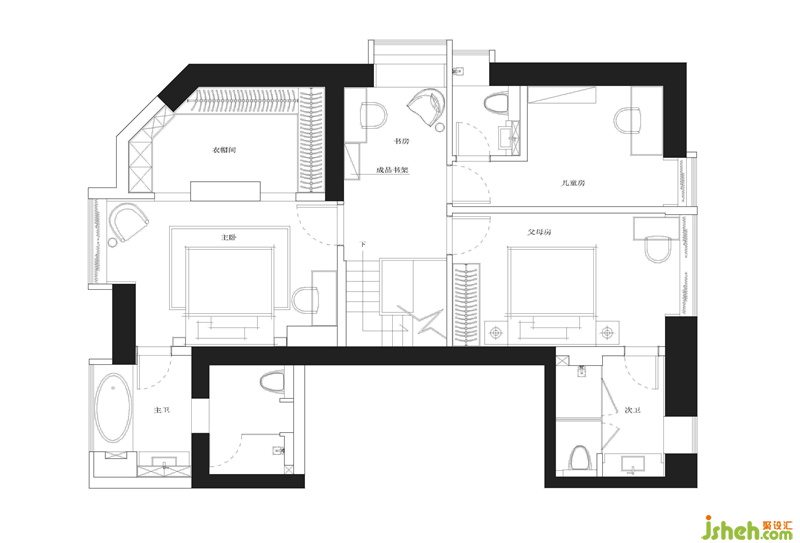
一楼平面图
二楼平面图
“本想着精装房装修起来很省事,可收房后却发现并不容易……”相信这也是很多精装房业主的心声。如果是大白墙交房,精装费用不会太高,改造时只做加法,倒也不复杂;可像本案的精装基础,墙面全覆盖护墙板或硬包,留之影响效果弃之又可惜,毕竟精装费用很高且材料很好,太难了!!!
于是,本案业主在收房后立刻联系了我们,希望在不大动干戈的前提下,通过设计让家里变成适合人猫居住的偏工业风的样子。

家里有两只喵喵,为了让他们有更宽敞、安全的玩耍区域,半高的封闭式成品柜成为了收纳的首选。一眼望去,公共区域是敞亮、通透、无拘束的。背景墙一面保留原有的暖米色硬包,另一面则换成了深色的木制石纹护墙板,搭配暖灰色布艺沙发、拼色抽象派地毯、深色木制家具等,流畅的线条比例与色块组合,展现出业主卓尔不凡的艺术品位。


木质与布艺的材质碰撞,有种真切的生活感,而深色的主基调中更是蕴藏着令人神往的意趣,有时是墙上的一幅装饰画,自成一道风景;有时是桌上的两三摆件,伴着阳光构成了一个故事。工业风的神秘与个性总在不经意间让人上头,室内一派别样的高级感。

