项目基本信息——
项目名称:煦暖
软装设计:深圳漾空间设计有限公司
软装实施:深圳漾空间设计有限公司
项目地点:深圳南山锦绣花园
项目面积:360平
装修风格:美式风格
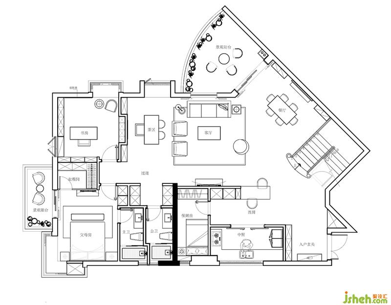
一层平面图
二层平面图
设计说明——
Q1:装修前,你对未来的家有怎样的期待?
A:希望家里是富有生活气息、温暖干净、有书香气的。不太喜欢样板房那样虽然精致但冷冰冰的感觉,家还是要有家的温度。
如果说装修风格体现了家的灵魂,那么美式风格就是开阔的、温馨的和舒适的。
室内设计师从业主对新家的期待出发,基于美式风格的硬装基础,充分利用室内空间,通过软装的尺寸、颜色、材质等要素,将温馨、浪漫的氛围融入典雅大气的空间中,更显室内温暖干净、富有生活气息又不失格调。
客厅运用米色、月白、灰色、蓝色等多种颜色搭配,营造出温馨、舒适、雅致之感。主沙发选择了手感细腻、坐感舒适的真皮材质,两侧分别摆放了与墙面同色系的单人布艺沙发和体量感较大的蓝色真皮沙发。色调主次分明,整体协调、温暖,围合式布局的摆放形式更是让室内充盈着温馨、舒适的居家感。

步入玄关,蝴蝶结样式的木色端景台与灰蓝色泼墨艺术画跳入眼帘,木色沉稳大气、灰蓝色优雅舒适,呼吸之间,尽显沉稳、温馨氛围。

Q2:入住后,您最满意家里的哪个元素或角落?
A:最满意家里的整体色彩搭配,既有家的温馨感,又有高级感。