项目名称:无垠
项目设计:深圳漾空间设计有限公司
软装实施:深圳漾空间设计有限公司
项目地点:深圳博林天瑞
项目面积:300平
装修风格:极简风格
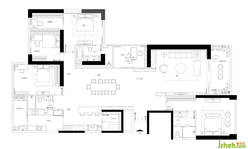
平面图
设计说明——
本案历程较为复杂,最初是由装修公司承接装修事宜,但由于业主的审美较高,设计图一直未能定稿,在多次无效修改调整后,考虑到装修时间过长,便一边设计一边动工了……直到木工阶段,设计图依旧没有进展,看着已见雏形但套餐化的房子,业主决定暂停装修,转而在朋友介绍下联系到我们,希望介入专业设计师来挽救僵局,不惜代价、拆掉重来。
业主希望设计更开放、艺术,除了卧室外,都不希望太生活化。房子面积比较大,需要尽量显得大气、突出空间感。同时,两代人一起居住,在功能方面需要考虑周全。
深圳室内设计师在格局规划上避免了小块区域的划分,尽量以开放的形式融入公共区域,凸显大平层优越的空间感,同时,以中西厨、双主卧等形式满足功能需求。设计手法上大量运用体块、穿插、线条等元素,打破空间的局限,让空间更有活力、延展性。

摈弃含糊繁琐的设计元素,让空间大面积的留白,仅在背景墙局部区域排线成面丰富装饰细节,同时将线性收口融入面中,让界面转折处干脆利落、连贯统一,更显极简大气空间感。

客厅围合布局式家具突破了造型的限制,让空间更为灵活宽敞。沙发后带拱门元素的挂画与边几上弧形摆件相呼应,构建了抽象与现实的气质联结,为空间增添许多生活意趣。
转而看向电视背景墙,右侧类似解构主义手法的悬挂设计打破了空间的限制,令人眼前一亮!