欢迎光临聚设汇,装修找设计就上聚设汇!
   咨询电话:15602987227
登录    注册
聚设汇
首页 > 家装 > 优游

优游

健身室也是休闲放松的好去处,无论是有氧运动还是力量训练,在这里都能满足。良好的通风、采光条件,加上开窗就能看到的园林景观,更能刺激人对运动的渴望,愉悦身心。

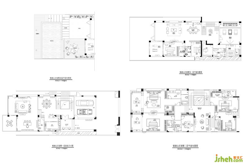
拥有泳池的别墅才是有灵魂的!将泳池与室外景观相互结合,别墅装饰不仅为别墅增添了品味与格调,还为日常的家庭活动、好友聚会提供了绝佳的娱乐场所。

深圳漾空间设计有限公司设计总监

设计收费:300 元/平             

擅长类型: 家装,豪宅,别墅,店铺,办公室

在线咨询

我的作品更多>>

扫描二维码关注我们的微信

深圳市聚设汇文化传媒有限公司
主编热线:15602987227
总部:深圳市罗湖区梨园路128号宝能汽车大楼416单元
佛山、东莞、成都、重庆、福州、厦门、南昌、武汉、
杭州、苏州、温州、郑州、长春、沈阳、贵阳、柳州、
哈尔滨、九江等城市设立办事处
© 2017-2021 Jsheh.com 版权所有 粤ICP备17079093号
展开
回到顶部