床边是金色质感且兼具床头柜功能的落地灯,柔和的灯光亮起,忘了是在梦中还是在现实里,总想留住点什么,无论真实或虚幻。侧耳倾听,多关注生活的细节,轻轻闭上眼睛,徜徉辽阔梦境,感受那暖心的温度……


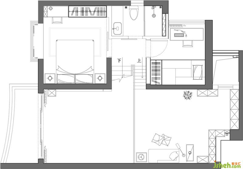
次卧是一个单纯的休息空间,没有无意义的装饰,只将必要的软装合理搭配,色彩和谐素雅,能让人迅速平静下来,适合入眠。
业主分享
Q:想对装修设计的朋友说?
A:在深圳能拥有一套宅子并不容易,必须做到自己喜欢,毕竟在里面住的人真真切切是你自己!不要妥协于家人、朋友甚至设计师的某些喜好。装修确实很累,但绝对是世界上除了运动之外,第二个付出就一定有收获的事儿。

卫浴间黑白相间的马赛克墙砖嵌进整体白瓷墙面中,避免有序排列,呈现自在、随性的美感。台面添置一抹绿色,整洁清爽的组合让空间使用起来更加惬意。很多东西,并不是非要看见才好,我们只管去聆听去感受,因为有太多美好,不以物质形态展现,但我们应该相信,它们真实地存在某个角落,安静下来,侧耳仍砰然!

