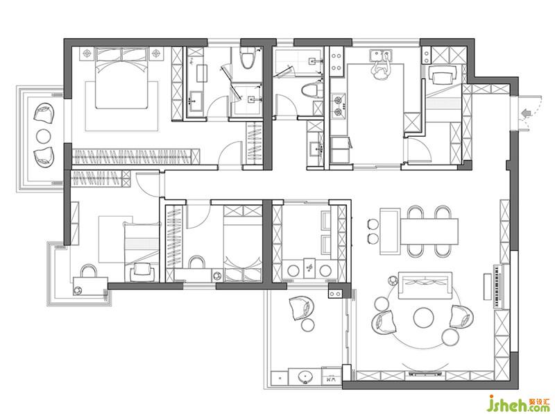
细化带来精致,而有一种细化,叫“专门为你”,书房虽小,储物、看书、品茗、写作、办公皆可,全方位满足你的需求!再小的空间,仍要有专门休闲放松的区域,这仿佛也是一种来源于生活的仪式感,提醒着我们,不辜负自己,不辜负生活,不辜负每一个岁月静好的日子。
保持家中干净整洁,一个收纳功能强大的榻榻米房可谓是必备选择!靠墙的整面储物柜无规律的设置了隐藏式收纳柜,保证原有储物功能的基础上又不显压抑,作为常住空间也是相当舒适的。
儿童房简单清爽,必要的储物空间仍以到顶柜子的形式实现,一些课外读物及小物件则可随手放在侧面的活动书架上。床前铺有一大块短绒地毯,给孩子圈出了一片玩耍的天地。
如果要形容最舒适的生活,我想,可能是在柔和的晨曦中起床,为爱的人制作健康美味的早餐,从容乘车上下班,日常工作忙碌但充实,休息日和朋友一起逛逛街,对某些技术感兴趣就去坚持学习,闲暇时抱着抱枕倚在沙发上看书或望着窗外的云朵发发呆,好友来访就在厨房捣鼓难度系数爆棚的满汉全席…… 室内设计师
所有事情只要做到极致,就能看到超过预期的效果。比如将卫浴间三分离,使得各项功能相互独立、互不干扰,大大提高了效率,让生活更舒心。
仪式感不应成为限制我们行动的枷锁,而应由我们去赋予它生活的态度,对生活的态度决定了我们将会拥有怎样的生活。将生活过成自己喜欢的样子,才能真正体会到,生活不只有眼前的苟且,还有诗和远方。

