项目名称:拾三
项目设计:深圳漾空间设计有限公司
软装实施:越过山丘家居生活馆
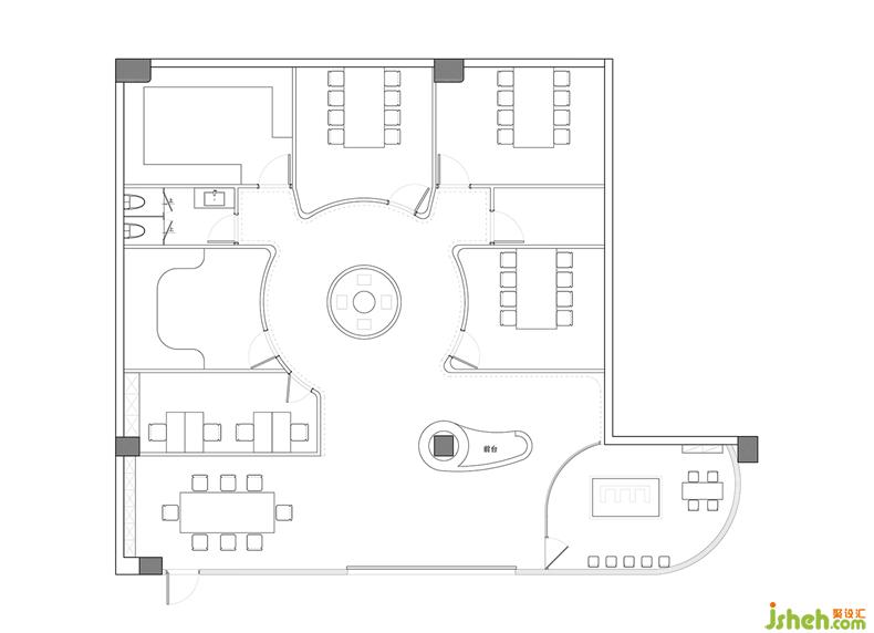
项目地点:深圳DASH编程学院深圳南山店
项目面积:300平
岁月永远年轻,我们慢慢老去,你会发现,童心未泯,是一件值得骄傲的事情。
——宫崎骏
这是漾设计首次承接少儿编程教育类的项目,且因业主工作地原因主要是以线上形式进行沟通。从同项目经验及沟通条件上来看,这次合作似乎颇有难度?但在相互信赖的基础之上,整个合作过程都十分顺畅,偶有小意外也能及时进行对接并迅速处理,项目最终得以实现预期的落地效果也就顺理成章了。设计公司
业主希望坐落在深圳南山区的DASH编程学院能够兼具科技感与童趣,希望能够通过室内设计让该校区,让前来学习的孩子不仅仅是学到知识,还能体会到亲手实践的快乐!抱着这种初衷,一家造型独特、线条流畅、颜色活泼、围绕一个圆展开的编程学院就诞生了!
充满现代科技感的设计,会让孩子们想起最喜爱的科幻动画和电影,就像是这造型独特的柱子,用软膜将灯管包裹,一开灯,蓝色灯光注入,产生强烈的视觉冲击,好似外星人的传送门。

一眼望去,流动的线条,鲜艳的颜色,像昆虫一样的造型,仿佛置身于星际大战的时空。

以银白为基调的室内,有别致的蹲椅,吸人眼球的圆柱,憨态可掬的机器人,让人目不暇接。

前台利用灯光的巧妙设计营造了空间的科技感,就像柜体及柱子上的灯带,弱化了本体的体量感,增加了视觉上的通透感,更凸显半透明的质感和光感。设计公司