欢迎光临聚设汇,装修找设计就上聚设汇!
   咨询电话:15602987227
登录    注册
聚设汇
首页 > 家装 > 天鹅港华庭大平层设计

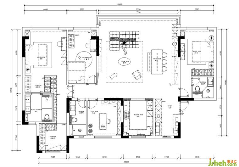
天鹅港华庭大平层设计

次卧

床 | Recasa

大平层设计次卧运用纯净的色彩,留白美学让整个空间沉浸在静谧柔和的氛围里,相比于繁复的装饰风格,这种简约装修更能触动人心,带来清爽、舒适的感受。

卫生间 

卫生间的地面和墙面采用了大块的灰色柔光砖,有一种“微水泥”的高级感,不仅美观,还自带防滑效果,增加空间的安全性。

更多大平层设计请关注聚设汇装修平台:

晓安设计

设计收费:面议 元/平             

擅长类型: 家居,豪宅,别墅

在线咨询

扫描二维码关注我们的微信

深圳市聚设汇文化传媒有限公司
主编热线:15602987227
总部:深圳市罗湖区梨园路128号宝能汽车大楼416单元
佛山、东莞、成都、重庆、福州、厦门、南昌、武汉、
杭州、苏州、温州、郑州、长春、沈阳、贵阳、柳州、
哈尔滨、九江等城市设立办事处
© 2017-2021 Jsheh.com 版权所有 粤ICP备17079093号
展开
回到顶部