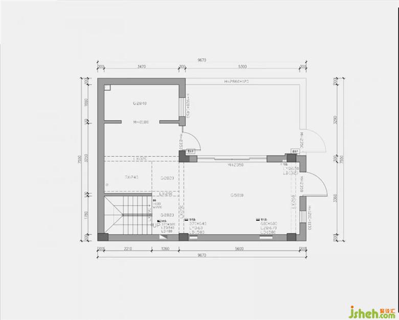
扮演诸多角色的岛台
岛台让别墅装饰多了更多可能,闲暇时,它可以是一张阅读桌,忙碌时,它可以是加班的工作台。
视觉更显宽阔
厨房与餐厅的吧台相连,呈开放式的结构,不仅从视觉上放大空间,同时让厨房散发的烟火气息蔓延整个餐厅。

打开一楼空间做了大餐厅
宽敞的玻璃窗让光线在室内追逐,天然的光源让餐桌上的佳肴变得更加色彩诱人,惹人食指大动。木质的长桌长椅,与窗外的风景相连,更像是窗外树木的衍生,充斥着自然的清新与悠然。
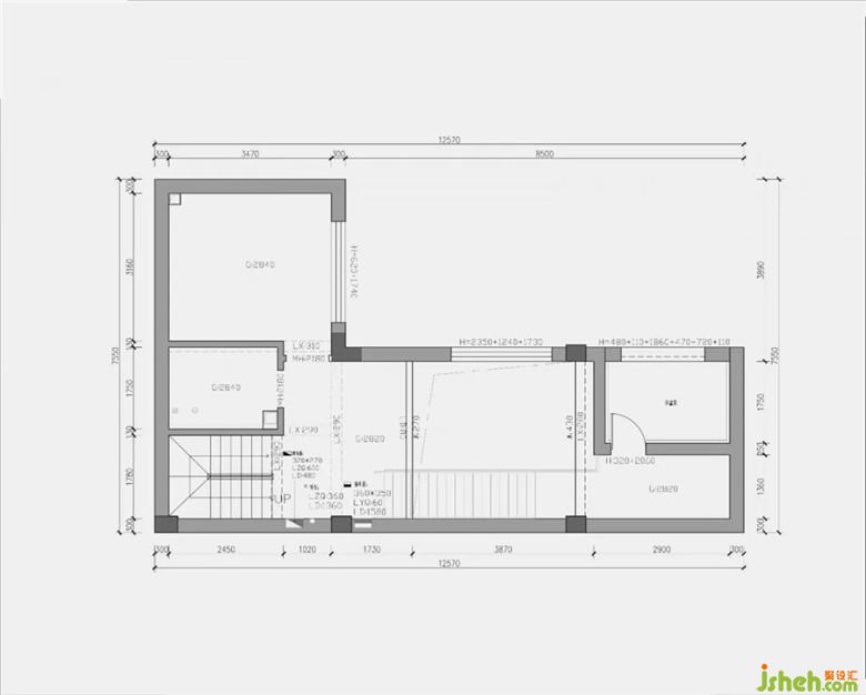
不同的灯光让卧室更有情调
营造空间层次感
大面积的浅浅的棕色,如新生的树枝一样温润动人,和深色的墙面十分般配,营造出别墅装饰空间丰富的层次感。不同的灯光,让卧室更有情调。
次卧更多的是为亲朋好友预留的,希望能带给他们宾至如归的体验。
预留一间客人的房间
柔和的床头灯
打扫卫生间确实是一件非常麻烦的事情,但如果能让卫生间的空间精简些、减少繁琐的装饰,生活一定会变得更加舒心。牺牲三楼一间卧室空间做了主卫生间



