
▲ 运用卡座打破传统家具摆放的限制,室内设计师以嵌灯为主,壁灯、小吊灯为辅的照明形式,赋予空间不同的灯光氛围,烘托出场域的质感与内敛。
▼改前空间结构
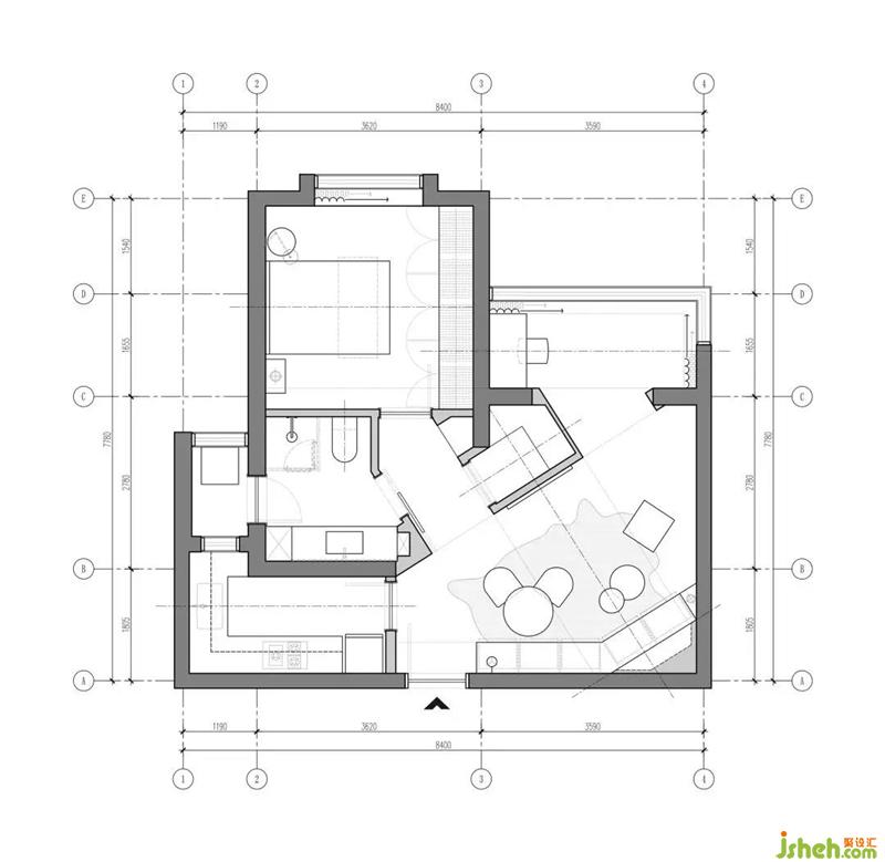
▼改后空间结构
▼空间演变过程
▲ 客餐厅一体的开放式空间,使有限面积里视觉观感最大化,方块几何的变化,新生出阅读区域和大量的收纳空间,让空间场域尺度的界定被打破,区域与区域之间产生沟通与串连的属性。
▼ | 阅读区-Study |

▲ 将原有的户外露台囊括为室内区域,实现阅读机能,界面单纯不繁琐,哪怕是一个小角落,也能让居住者心境沉稳。
▼ | 卧室-Bedroom |
▲ 随着场域转换,私密空间的色调延伸公共空间的静谧氛围,与粗犷的木质特性彼此调和,蕴藉出安稳而沉静的力量。
▼收纳空间图
▼平面布置图
▼| 项目故事-Project Story |
GHB | 沟通 | 设计 | 施工 | 选材 | 硬装 | 软装 | 摆场 | 拍摄 | 文案 |
本案是一套小户型精装房的软硬装改造,业主是位英国留学归来的90后,国外居住经历使她对自己家的风格有着明确的定义,在有限的预算下,延续曾经的生活经验并为屋主创造新的生活体验,是本案最重要的核心所在。
藉由与业主多次的沟通交流,我们初步制定了以北欧简约为主的风格调性。设计的概念上透过盒体作为主轴,布局划分出使用机能及动线分布,在整体看似简约的空间状态中,隐藏着许多对细部空间的思考。
本案以纯粹材质来表现空间氛围,因此材质的选择非常考验设计师的艺术功底。在全案执行过程中,墙纸、窗帘、地板等都会选取小样到工地现场比对,以空间自然光线下的材质属性作为选材依据,以保证落地效果。
▼全案花絮
更多室内设计师资讯请关注聚设汇装修平台: