案例类型 / 联体别墅
项目位置 / 苏州
项目面积 / 400㎡
设计机构 /威利斯
设计师 / 石小青
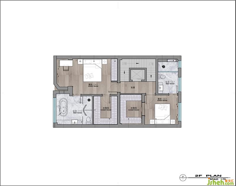
本案位于苏州园区,400平联排别墅,分为五层,地下二层以储物为主,设立储物间以保证正常储物的使用功能;
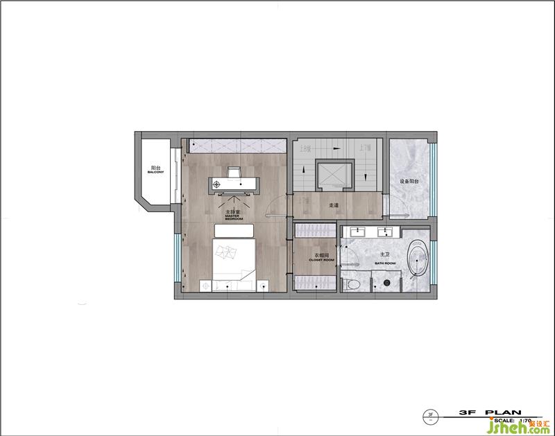
地下一层为接待、休闲空间,设立了接待厅、书房、西厨可以用来会客接待朋友,也可以用来工作学习;一层层为生活空间,有客厅、厨房、餐厅、门厅满足正常居住的家庭公共区域;二层三层为居住空间,二层做了两个套房,衣帽间,卫生间都分开使用,保证了生活隐私,三层为主人家大套房,设立了衣帽间卫生间以及套内书房,安静而又温暖。别墅装饰

休闲区的空间一般比例宽敞,落地玻璃窗,在视觉上看起来空间很宽敞,采光效果也很好。地面用浅色的木地板,沙发也是浅色和橘色的撞色沙发,给人一种舒适安逸的感觉。别墅装饰
The living room space is generally spacious in proportion, with floor-to-floor glass windows. It looks spacious visually and has a good lighting effect. The floor is made of light-colored wooden floors. The sofa is also a light-colored and orange collision sofa.
负一层休闲区▲
负一层西厨▲
一层入户▲
整墙的开放格空间利用率达到极致时尚实用整个客厅中的家具线条都很流畅。别墅装饰
The whole wall of the open space utilization rate reached the ultimate fashion practical whole living room furniture lines are very smooth.

餐厅▲
素食主义匹配素食空间,清雅·安静,安享静谧之味。别墅装饰
Vegetarianism marries vegetarian space, creating a sense of elegance and serenity and great enjoyment of peace
卧室▲
我们用清俊的颜色给主人编织了一场春雨淅沥般雅致的梦,空间内自成一派的韧劲,刚柔之间相互融合交织,形成温和细腻的平衡,皆是这双璧人对彼此的迁就与包容。别墅装饰
We weave an elegant dream of spring rain with clear and handsome colors for our masters. The resilience of our own school in space, the integration and interweaving of rigidity and softness, and the formation of a gentle and delicate balance are the accommodation and tolerance of the two Bi people to each other.




