室内设计师
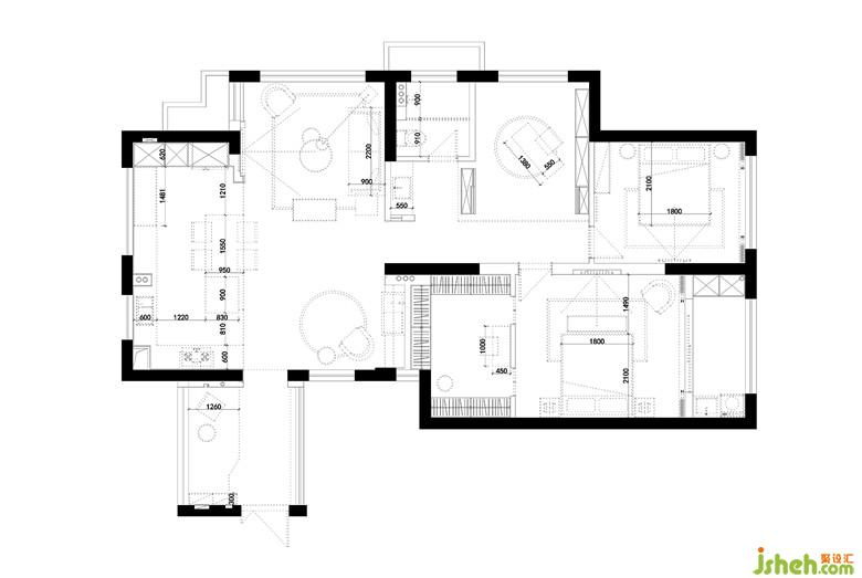
卫生间外扩成超大衣帽间,满足业主对于着装的需求,又有品质感。多功能区,通过上轨道可移动的白色折叠门来开合这个又能当休闲区又能当客房,又能当书房的空间。稍微把这个房间缩小些,但大小适中能满足偶尔客人的居住。


业主作为一位科技公司的主力职员,职场压力会比较大,一半是因为生存,一半是因为复杂的生活。有时候就连属于自己的一方天地-- 家,也会因那些拥挤、繁复的细节让人倍感压力。

室内设计师
所以在找我们设计的初衷,就希望摒弃一切无用的细节,保留生活最本真、最纯粹部分的实用部分,而且希望留下的都是有格调,有质感的物件和空间。

室内设计师