异材质碰撞出料里的酸甜苦辣,水泥纹透露著朴实气息,如同食物的「原形」,来一场视、听、味、嗅、触的五感体验。不同材料有着对比与碰撞,色彩上通过深浅制造出不同功能的空间范围。
「若从美学的定义来看「感官」就如同视觉、空间的感受、艺术的欣赏等直觉,而情感讲的则是内心层面。」。他说,融入感动的元素这才是‘居’的第一层要义。
「弧」,圆润的包覆著空间中的故事,诉说着与众不同的场域,创造出立面视觉的跳跃感
墙面采用了大面积的留白,运用矿物涂料镘刀涂抹,拉出山水般的飘逸轻柔,手作的精细搭配深色木门纹路同时带来更多温润感,材质与材质之间进行美学上的交流,擦出纯净、自然、质朴氛围 。
餐厅保持理性而精简,强调一种简的高级感,不增加多余无用的装置,餐桌与电视墙对话,沉浸在自己的世界里。豪宅设计


豪宅设计




「线」,俐落的穿梭著时光中的横与纵,非等距排列或疏密变化,勾勒出可塑性和稳定感。
窗外上演著四季的一片静谧,挹注著漫漫日常。如诗如画的一片景,都收藏在时光的口袋中。人和环境的关系透过光的仪式感,创作最适合当下的感官设计。这里是王中丞认为的居的另一层要义,一种回归的原味。
马鞍皮与车缝线演绎著隽永的订制感,平添一种奢华简约,处处显露著材质混搭的精工。每一个缝线和皮料都经过时光的工法有所呈现,有柔有刚的压条与皮革优雅体现在细致的线条与细节上。臥室空间,床头柜墙的另一侧被设计为为书房空间,让其具有足够的开放性,即能满足阅读功能。融合了展示格、书籍收纳层架以及抽屉,并加入亮橘点缀,营造视觉的惊喜和动感。
主卫的设计,整体采用浅色为基调,简约大器之中不乏考究匠心,安放灵魂的所在。大量使用的石材,本质与纹理让生活更加接近一种原的状态。
让我们享受人生的滋味吧。如果我们感受得越多
我们就会生活得越长久。——(法国作家)法朗士
人字拼接不同颜色的深浅,增加了空间的动感,另外各种家具天花和曲线的结合,也寓有着别样的气质。不规则曲线的半腰床头板墙,将睡眠区与阅读区分隔出来,引窗外天光至此,善利用转角处创造床头光。以圆曲线造型规划出衣柜,曲直互补增加了臥室柔和,空间流动互相呼应。
细节处展现出轴向之间的线条与量体切割呈现丰富的变化,透过比例、排列、交织、延伸,赋予每一条框线可简约,可繁细,也可以温柔。线条与生俱来的强大的视觉,往往能带给人平衡、纵深,置身其中一起探索。
延续整体空间氛围,为本身增添了宛如艺术品一般的独特气质。
次臥更衣室延续木质温润基调,打造机能十足的空间,区隔卫浴又具有穿透感。借以延伸、穿透、借景和复合。
延揽窗外山河的美景
时不时的眺望,从白昼到黄昏
观察夕阳西下光影的关系。
Learning to live in harmony with Nature
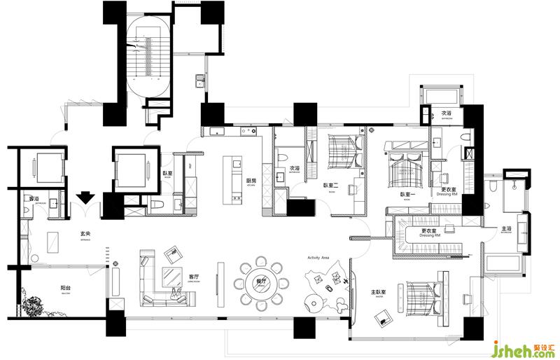
居住者为一对年轻夫妻及其儿女,屋主热爱大自然及摄影,希望小孩能够住在一间较为接近大自然的房子里,并希望在生活中能培养孩子对美的探索。磅礡的视野、无穷无尽的生命力,居家环境里也能享有休閒氛围。吹著微凉的风,写著生活的盎然惬意,户外始用了菱格纹座椅搭配木制茶几素雅却又不失时尚,喝杯茶、晒晒太阳、点亮蜡烛让每一个角落都充满香气的故事。设计简约俐落,明亮且宽敞的动线切入结合连贯的元素,包括线条、色彩、材质、比例并延揽窗外山河的美景,时不时的眺望,从白昼到黄昏,观察夕阳西下光影的关系。
设计亮点/Design Idea
寓入圆融线象
Circle and Line
「弧」,圆润的包覆著空间中的故事,诉说着与众不同的场域,创造出立面视觉的跳跃感。视线一直延伸至天花板,天际线也可以有更多艺术的动态效果。圆弧减去了直角带来的锐利,带来了线条的柔和。空间借由圆弧巧妙的串联,交错、叠合出生活中的另一种层次。「线」,俐落的穿梭著时光中的横与纵,非等距排列或疏密变化,勾勒出可塑性和稳定感。细节处展现出轴向之间的线条与量体切割呈现丰富的变化,透过比例、排列、交织、延伸,赋予每一条框线可简约,可繁细,也可以温柔。线条与生俱来的强大的视觉,往往能带给人平衡、纵深,置身其中一起探索。