欢迎光临聚设汇,装修找设计就上聚设汇!
   咨询电话:15602987227
登录    注册
聚设汇
首页 > 商业 > 全南半山墅

全南半山墅

内观看自己,外观看世界,书吧区承一处静心,水流于此,波光嶙峋。明心神之书,清心涤思之茶,静坐于此,醉在其中。



细腻的纹理游走在每一件家私上,素雅中彰显尊贵,细心品读,越是有味。

楼梯处以半透树脂为元素,错成山形与装置艺术形成呼应,营造出静谧,幻想之境。

印有山水的纱帘,在延续一层大厅元素的同时,也与竹枝假山造景相关联,营造出空灵宁静的艺术氛围。


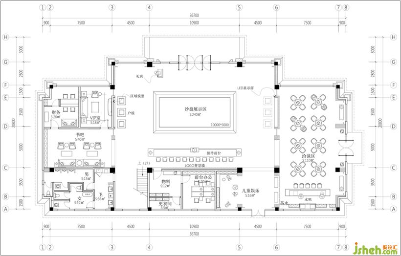
▲营销中心平面图

设计公司

石头兄弟联创设计 创始人

设计收费:600~800 元/平             

擅长类型: 售楼处、样板房、高端住处

在线咨询

扫描二维码关注我们的微信

深圳市聚设汇文化传媒有限公司
主编热线:15602987227
总部:深圳市罗湖区梨园路128号宝能汽车大楼416单元
佛山、东莞、成都、重庆、福州、厦门、南昌、武汉、
杭州、苏州、温州、郑州、长春、沈阳、贵阳、柳州、
哈尔滨、九江等城市设立办事处
© 2017-2021 Jsheh.com 版权所有 粤ICP备17079093号
展开
回到顶部