欢迎光临聚设汇,装修找设计就上聚设汇!
   咨询电话:15602987227
登录    注册
聚设汇
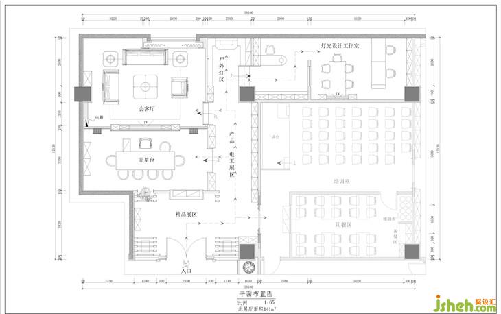
首页 > 商业 > 简雅东方 • 生活之光

简雅东方 • 生活之光

室内设计师

室内设计师

室内设计师

东莞市佳易室内装饰设计有限公司执行董事/总设计师

设计收费:300 元/平             

擅长类型: 办公室,会所,豪宅,别墅,商业

在线咨询

我的作品更多>>

扫描二维码关注我们的微信

深圳市聚设汇文化传媒有限公司
主编热线:15602987227
总部:深圳市罗湖区梨园路128号宝能汽车大楼416单元
佛山、东莞、成都、重庆、福州、厦门、南昌、武汉、
杭州、苏州、温州、郑州、长春、沈阳、贵阳、柳州、
哈尔滨、九江等城市设立办事处
© 2017-2021 Jsheh.com 版权所有 粤ICP备17079093号
展开
回到顶部