项目背景
总设计师:王福斌
佳易设计团队:欧国华、黄玉蝉、魏攀磊
艺和堂艺术总监:王福斌
艺和堂软装团队:黄玉蝉、张菊、邬京玲,范彩华,李娅,陈芳
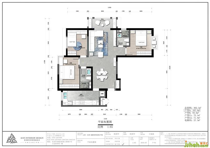
项目地点:山西太原
项目类型:刚需精装样板间
项目面积:108平方
项目造价:软硬装总造价2980/平方,包含全屋智能照明、厨房电器、卫生间洁具(TOTO品牌)
该套现代风格样板房,室内设计师以“精致”生活观与笔触,娴熟地呈现具有设计感的品质空间,将优雅时尚的质感结合着现代材质及装饰技巧巧妙地糅合于空间及物件上,展示着精致的生活态度。或简约大方,或繁复含蓄,或个性鲜明,或艺术方雅,以生活之美进化为精神的愉悦,把生活修正成你喜欢的模样,在十分怡静舒适的日常中,始终保持你对生活真正的冲动。
精致,并非是品牌或奢侈
精致,从来不是物质享受
精致,并非只是精英私享
精致,是对自己的宠爱
每个认真对待生活的人
都把生活当艺术品对待
对生活之美保持着热恋
对精神愉悦保持着通达
把生活进化成喜欢的模样
当我们越来越沉醉于欣赏一幅画的高低,为生活之美而感动;当我们舒展于沙发之上,欣赏那些质朴却又鲜丽的色彩变幻;当生活中的每一个细节都无可挑剔,毫无顾忌地纵情时光;当春日暖阳之时,在家中静静享受阳光与香茶……这些生活中的点点滴滴就汇聚成了“精致生活”。
|客厅
轻推入户,客厅整体精致利落的舒适感让人瞬间卸下倦意。颇具质感的软装,有品有颜,不过分张扬,也不过于内敛,与都市里淑女绅士们那挑剔的眼光如出一辙。落地窗与纱帘滤过光影,交织出人与空间、自然三者间难舍的情结,明净雅致的客厅因这半倒影更显灵动,紧贴你对精致人居的精神诉求。
时尚经典的格纹,永不过时的皮面,是当下必不可少的精心配搭。素雅灰白主导的空间,独特内敛,而室内设计师看似不经意的橘黄装点,越过纹理样式留下的视觉印迹,毫不掩饰地彰显出你对现代美学的孜孜享受。

精致,坦言喜欢;精致,敢于追求;精致,是对自我的取悦和肯定。设计师就其对生活的理解、对艺术的体会,对质感的要求,融合设计之温度,从家居器物、精美作品着手,让居住者对家的感悟和温度,在细微处交叠,在分秒中流转。
| 餐厅
精致,是删繁就简,是达到完美的平衡。
入户玄关隐设墙内呈半开放状,缓和了展示与收纳两者之间的博弈,追求完美的精致者们对此喜闻乐见。室内设计师对全屋的照明设计,在某些特定时刻暂时替代自然光线,落在居住者的心头之上,与不同时空的情绪氛围相辅相成。折线灯饰,前卫简约,餐厅上空的现代灯具别样吸睛,收放之间,追光逐影,怎不精妙!

| 厨房
