欢迎光临聚设汇,装修找设计就上聚设汇!
   咨询电话:15602987227
登录    注册
聚设汇
首页 > 家装 > 吉光片羽

吉光片羽

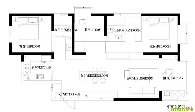
▲空间过渡到卧房的这部分,氛围冷静下来趋向柔和,床后简明线条组成优雅的画框,框存一室没有视觉“噪音”的干净内饰,灰色调流淌在每一寸空气中,亲切自如。

▲主卫不是干湿分离的形式,装修公司只用玻璃移门做简单分隔。壁龛是卫生间中不占用空间、便利的收纳形式。黑白灰打造这里功能之外的简明扼要。

▲U型橱柜充分利用厨房空间,方便操作,吊柜做到不给高处增加压抑感。灰色耐脏,装修公司大面积的利用完成厨房空间的视觉整体性,操作台面的白色从中亮出,成就了清爽、整洁的另一部分。

熹维设计

设计收费:面议 元/平             

擅长类型: 家装、豪宅、别墅

在线咨询

我的作品更多>>

扫描二维码关注我们的微信

深圳市聚设汇文化传媒有限公司
主编热线:15602987227
总部:深圳市罗湖区梨园路128号宝能汽车大楼416单元
佛山、东莞、成都、重庆、福州、厦门、南昌、武汉、
杭州、苏州、温州、郑州、长春、沈阳、贵阳、柳州、
哈尔滨、九江等城市设立办事处
© 2017-2021 Jsheh.com 版权所有 粤ICP备17079093号
展开
回到顶部