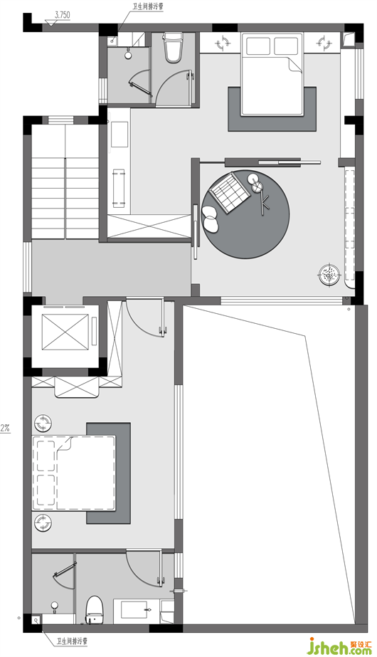
儿童房延续空间的整体风格,平淡简净,样板间设计以金属打造的童趣展架,点出空间气质,打造宁静雅致的休憩空间体验,令人于其中彻底放松身心,感受生活给予的柔和力量。
长辈房房的卧室保持简约的设计风格,经久耐看,局部木制墙面与整体空间相呼应。
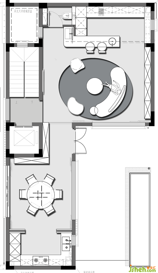
在夹层区域设置冥想区,当车水马龙、摩肩擦踵成为城市的代名词,当快节奏的步调成为生活常态,载浮载沉在忙碌且日复一日的时间洪流。配合室内天井,垂直向度的连结,没有喧嚣浮躁,取而代之是一片静谧与安宁。
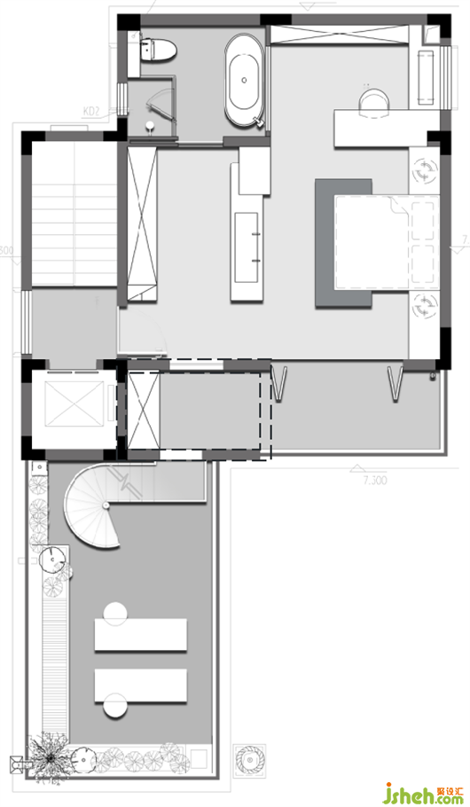
挑高的地下室,以灰色基调为伊始,结合线条与金属质感,为空间注入精致与高级感。








更多样板间设计请关注聚设汇装修平台: