大气的印度黑石材的地面材质台面上展示异形艺术品,相互造成的有趣对话,三亚样板房设计点缀着全家人愉悦的相处空间。此艺术品兼具座椅休憩功能,在空间使用上带出精致生活感,大露台如同一个展示艺术品的美术馆。
红酒柜/书墙 - 场域的体验与机能,合而为一
艺术走廊 - 酝酿内蕴,进入前的仪式感
梯厅温润素雅的材质与光源的呈现方式,带你我进入时如同卸去层层外在束缚,回归自己。印度黑石材与光线的引领,让视线轴线无限延伸,为进入三楼雪茄书房揭开了序幕。
△三层冥想区


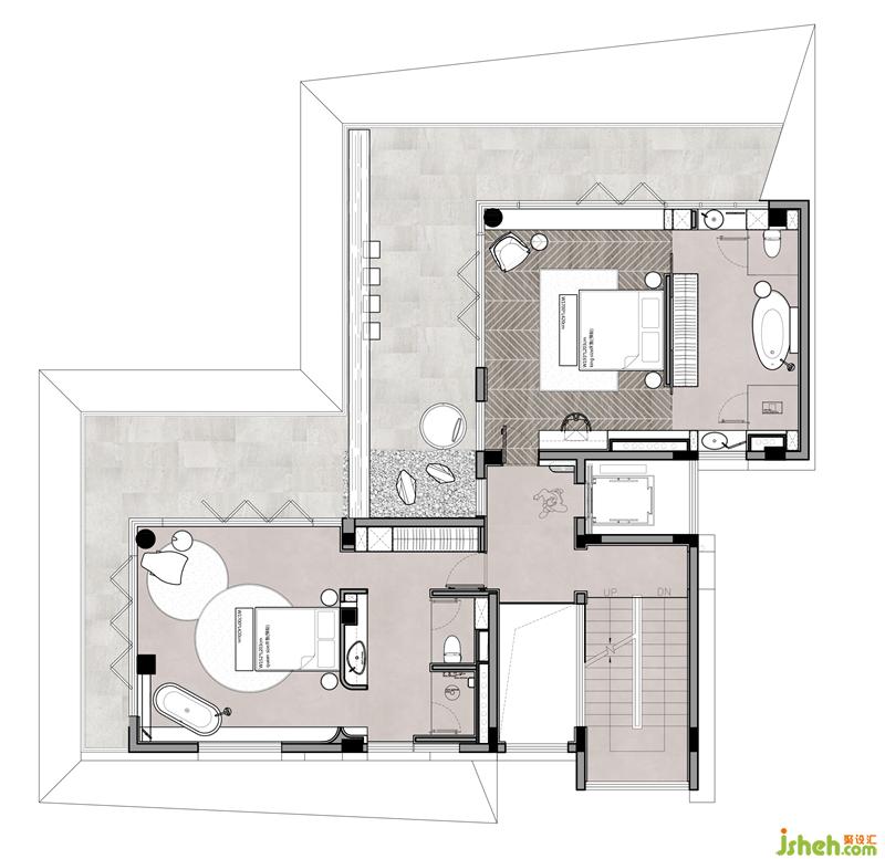
△平面图
更多三亚样板房设计请关注聚设汇装修平台: