项目名称| 京基御景峯大平层装修设计
项目地点 |深圳南山
项目面积 |238㎡
软装机构 |愉悦设计、高格软装
主案设计 |谭斌
固装单位 |西克曼
项目文案 |乐作企划
项目摄影 |脚印
城市的紧张和忙碌构建了现代人的生活秩序,人们越来越渴望回归自然之境。理想家的大平层装修设计打造,一定要与业主的精神气质相契合。本案受企业女高管委托,项目傲立湾区智核,毗邻都会缤纷生活圈。居所与山水联结,半隐于市,推窗可见塘朗山的绮丽风光,直面长岭陂水库的开阔湖景,举步即达生态休闲绿道,静享山湖连城环幕生态空间。
居室属于四室两厅三卫大户型奢享格局,居住、访客、家务三条动线简短清晰。大平层装修设计以阔景规划理念打造客餐一体的流动空间,视线在空间里自由穿行。270°落地窗最大限度地让自然光线进入室内,让居住者随时拥有豁朗心境。
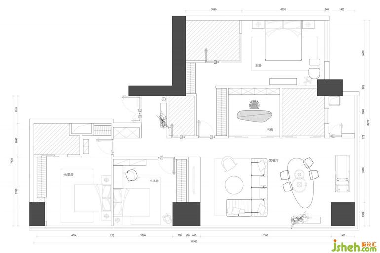
平面布置图
平和优雅、轻盈松弛,是人们对家最本质的精神渴求。大平层装修设计在理想之城寻得一处栖息之地,生活的新诗篇由此展开。大道至简的廓形,从容的基底中透露着克制。玄关入境,灰色大理石和铜色镜面结合,冰冷材质的碰撞,营造理性的归家想象。
01 / 客厅
▲ 客厅效果图
直线条的墙体、木饰面、灰色纹路大理石三者以其简洁干练的块面关系,丰富着空间层次。米色L型布艺沙发搭配深灰色单人座椅,弧形茶几柔和了整体空间,打造一个明净通透的客厅。空间中人与人的交流随时发生,家人在此围坐,看四季变化,在温馨的生活空间里收获美好的记忆。






