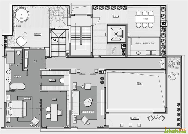
卧室的布局连通整个二层空间,从卧房、盥洗室、衣帽间,再到书房,府邸设计甚至多功能影音室,体现了最优体验的“自得其乐”。
府邸设计延续一层的宅形与文化的同时,整个空间通过主人的日常轨迹去建构和演绎,让一切自然而然,浑然一体。

书房是男女主人最喜欢的地方。日常可以做他们最喜欢的事情——阅读与习字,简而不凡、高洁清雅。

设计一处尚无面貌的新房子尚且如此,对一个人来说,室内设计师是盖房子;对另一个人来说,是在里面居住。
更多时候,府邸设计师就像站在宇宙高度观察人类的作家,根据需求与心灵条件,去思考空间与环境,了解喜好与习惯,建构日常,甚至享受居者的快乐,从而终极演绎“你在空间生活的样子”。

更多府邸设计请关注: