欢迎光临聚设汇,装修找设计就上聚设汇!
   咨询电话:15602987227
登录    注册
聚设汇
首页 > 商业 > 盈尺之地 别有洞天

盈尺之地 别有洞天

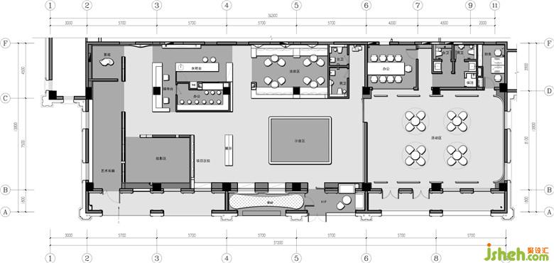
灯饰上,造型简洁,线条流畅,富有现代感,又不显得突兀,为整个空间增添了品位。

山重水复疑无路,柳暗花明又一村。看似空间到了尽头,而展厅侧墙出口则又进入了另外一个空间——vip接待室。独立的设计相当注重人的隐私,横向大面的玻璃窗,计划性地将窗外墙内的自然园景吸纳入内,让室内之人面外视窗最美的部分,气氛安全隐秘而又无比舒适。

雁鸣君安里体验中心不仅仅是一个商业销售中心,它更承载着家的理念,代表着这里的生活质感。项目的设计理念与此不谋而合,用极简的线条,勾勒出最灵动的空间。少就是多,简单就是丰富。

河南鼎合建筑装饰设计工程有限公司 总经理

设计收费:1000 元/平             

擅长类型: 酒店,餐饮,地产,办公室

在线咨询

扫描二维码关注我们的微信

深圳市聚设汇文化传媒有限公司
主编热线:15602987227
总部:深圳市罗湖区梨园路128号宝能汽车大楼416单元
佛山、东莞、成都、重庆、福州、厦门、南昌、武汉、
杭州、苏州、温州、郑州、长春、沈阳、贵阳、柳州、
哈尔滨、九江等城市设立办事处
© 2017-2021 Jsheh.com 版权所有 粤ICP备17079093号
展开
回到顶部