欢迎光临聚设汇,装修找设计就上聚设汇!
   咨询电话:15602987227
登录    注册
聚设汇
首页 > 家装 > 缤纷Colorful复式装修设计

缤纷Colorful复式装修设计

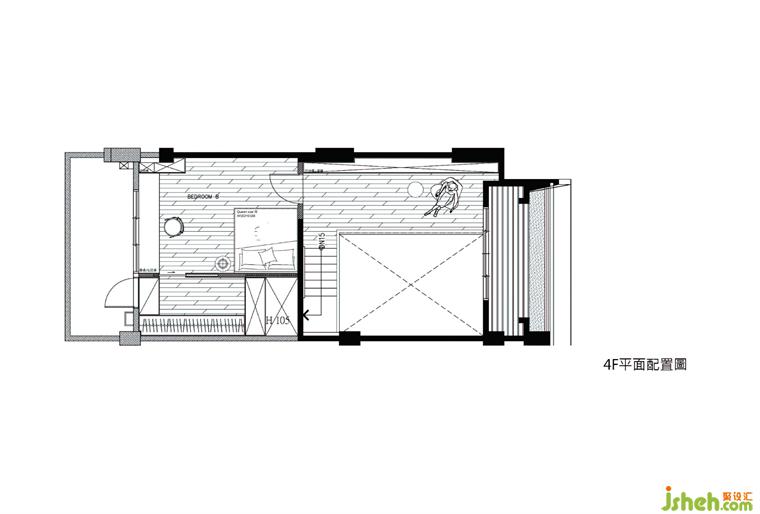
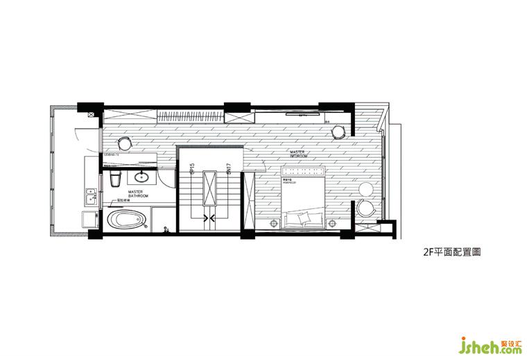
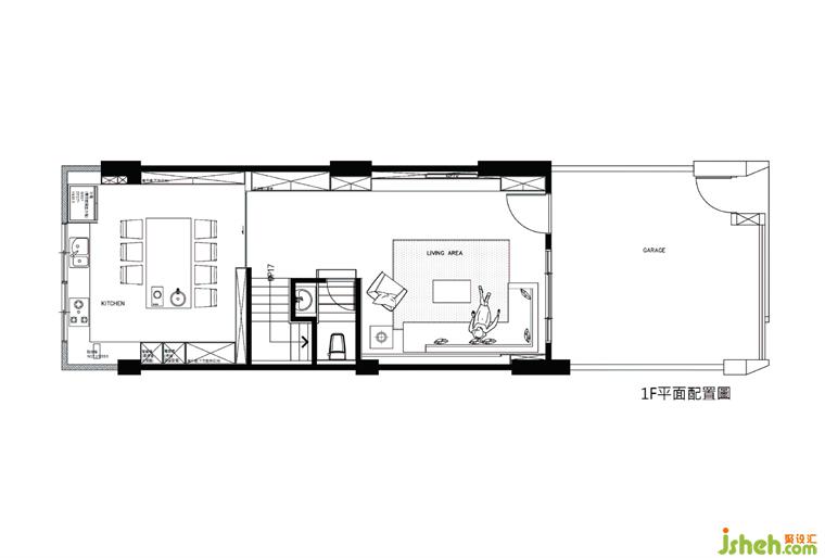
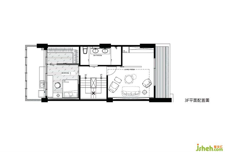
藉由设计的转绎,解构孩房童趣语汇、动线机能之外,满足心灵及空间、虚与实、形与意的心境、生活、与风格的旨趣。复式装修设计团队以饱和的蓝白彩度,勾勒时尚调性,围塑强烈个性。卫浴空间以进口磁砖几何拼贴,藉由缤纷色彩,转载活泼朝气。

更多复式装修设计请关注聚设汇装修平台:

Zendo 深度空间设计设计总监

设计收费:1000 元/平             

擅长类型: 家居

在线咨询

扫描二维码关注我们的微信

深圳市聚设汇文化传媒有限公司
主编热线:15602987227
总部:深圳市罗湖区梨园路128号宝能汽车大楼416单元
佛山、东莞、成都、重庆、福州、厦门、南昌、武汉、
杭州、苏州、温州、郑州、长春、沈阳、贵阳、柳州、
哈尔滨、九江等城市设立办事处
© 2017-2021 Jsheh.com 版权所有 粤ICP备17079093号
展开
回到顶部