欢迎光临聚设汇,装修找设计就上聚设汇!
   咨询电话:15602987227
登录    注册
聚设汇
首页 > 家装 > 总监行馆President 15复式设计

总监行馆President 15复式设计

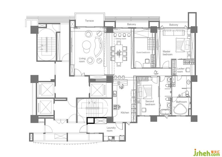
餐厅与厨房间以开放关系,导读生活…结合悬挑式吧台设计、复古地砖拼贴的地材设计,联袂彼此生活互动,还原、引申户外公园绿景景况的自然意趣;复式设计任由自然光源映衬着材质产生温润表情,使得整个厅区表情显得开阔而舒适。设计上将客用卫浴以二进式设计,规划男孩房套房形式,也满足访客使用机能。

更多复式设计请关注聚设汇装修平台:

Zendo 深度空间设计设计总监

设计收费:1000 元/平             

擅长类型: 家居

在线咨询

扫描二维码关注我们的微信

深圳市聚设汇文化传媒有限公司
主编热线:15602987227
总部:深圳市罗湖区梨园路128号宝能汽车大楼416单元
佛山、东莞、成都、重庆、福州、厦门、南昌、武汉、
杭州、苏州、温州、郑州、长春、沈阳、贵阳、柳州、
哈尔滨、九江等城市设立办事处
© 2017-2021 Jsheh.com 版权所有 粤ICP备17079093号
展开
回到顶部