▼ 一层空间1st floor@平介设计
▼ 一层空间1st floor@平介设计
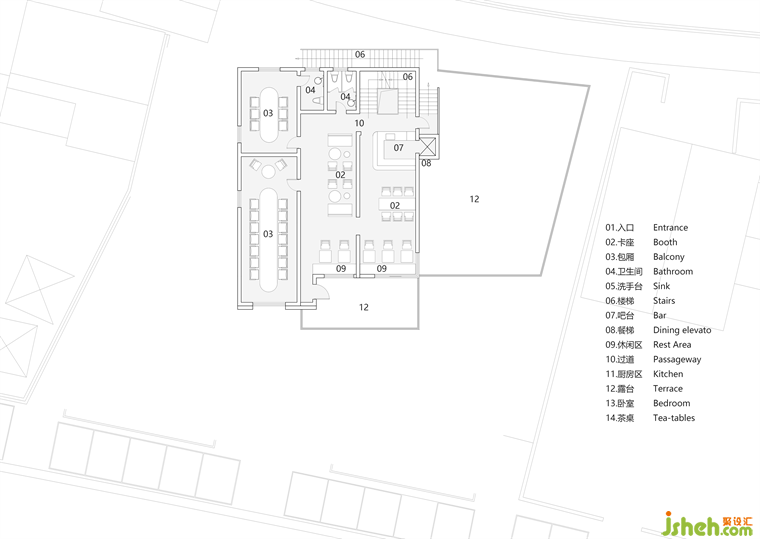
二层原本是几间卧室和一间起居室,隔墙比较多空间尺度也比一层的更小,我们选择将一个比较大的主卧和起居室连通用来做客座区,度假餐吧设计其余的卧室则作为包厢使用,我们在面向湖面的方向都做了大开窗让上到二层的客人都能有突然观赏到太湖时豁然开朗的感受。
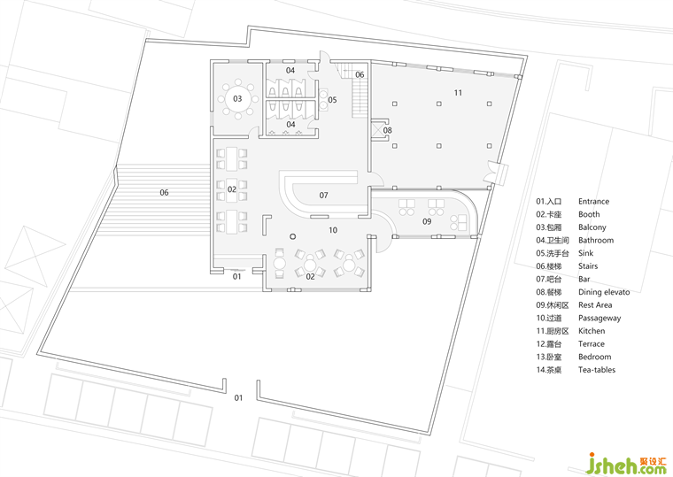
Thanks to the demolition of the original windows and doors, the old building and the new added part are more coherent and the usable area has been expanded a lot. We put the bar counter into the space by attaching the old and new walls, so that the whole hall can connect and radiate the whole space with the coffee bar as the core. The longer bar uses a circular arc at the junction of spaces to guide people to the other end of the space. The new built auxiliary building on the right is used as an area where the owner usually receives some personal friends. The space as a whole is dominated by clean and tidy white tones, and some colors are dotted on the furniture. The indoor ceiling and stairs use stacked arcs as the basic language components to wrap the space, just like the backflow collision when the lake water is pushed to the shore and splashes.
▼二层空间2nd floor@平介设计
▼二层窗景2nd floor window view@平介设计
▼ 楼梯间stair case@平介设计
长时间的疫情导致人们都想逃离城市,寻找一片心灵栖息的绿洲。度假餐吧设计项目以观湖为媒介,将人们都牵引到此,来增强人与人之间的互动,聆听彼此,创造更多的可能性。远离城市,人们漫步前行的街道与矗立在此的建筑一同构成了令人向往的生活,我们希望每个到此的顾客都能收获到属于自己的那一份宁静与安逸。
The long-term epidemic has made people want to escape the city and look for an oasis of spiritual habitat. The project uses the lake as a medium to draw people here to enhance the interaction between people, listen to each other, and create more possibilities. Far away from the city, the streets where people stroll and the buildings standing here constitute a desirable life. We hope that every customer who comes here can reap their own peace and comfort.
▼ 立面facade @平介设计
▼屋顶航拍 roof plan@平介设计
▼ 模型照片model@平介设计




更多度假餐吧设计请关注聚设汇装修平台: