↓细部装饰
银河卡座区 ©王一翔/万利
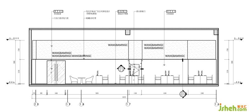
在细部装饰方面,因为考虑项目造价的成本,摒弃了复杂的装饰,在广告公司与施工的配合下,墙面上设计了网吧的Logo和名字,并用文字来装饰空间,文字突破了有声语言在时间和空间上的局限性,直击人的心灵。
蓝色大厅 ©王一翔/万利
此次的设计更多的是克服预算少的限制,我们希望在这个商业空间里,通过独特的概念和空间界面的处理,创造出尽可能丰富的空间感受,成为年轻人放松打卡的胜地。探讨在充满限制的商业空间改造下,如何对空间使用作出新的解答。会所设计
平面布置图©平介设计

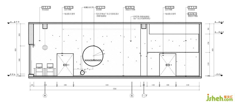
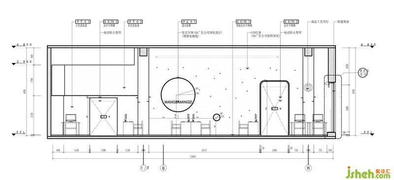
立面布置图©平介设计
天花布局©平介设计
平面布局©平介设计
更多会所设计请关注聚设汇装修平台: