酒店设计

室外景观平台也延续木门的肌理,青砖铺地,亦用作镂空围墙,顶部布满蓑草的凉亭和竹木编织的茶座,可游可憩,这时候再远眺远方的山、村落的袅袅炊烟和脚下的水,正应了一句诗:
暂离城镇居乡野,屋外炊烟悬半沟。是处临溪接翠岭,此身喜静羡清幽。

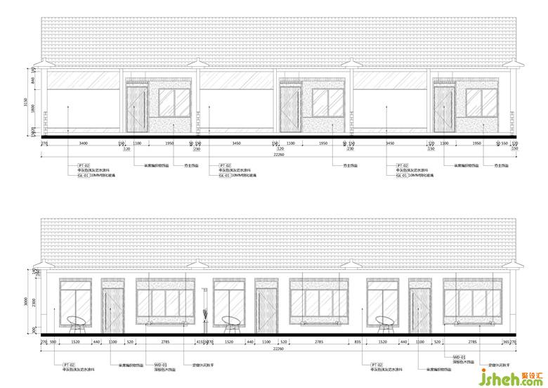
入口处做挑檐处理,呼应原建筑的徽派檐口,一上一下形成韵律感,入口挑檐打破单调缺乏变化的立面的同时,为游客提供了标识及引导功能。结合外嵌的浴室空间,正好为入口构造了一个内凹的灰空间,保证了良好的隐蔽性。

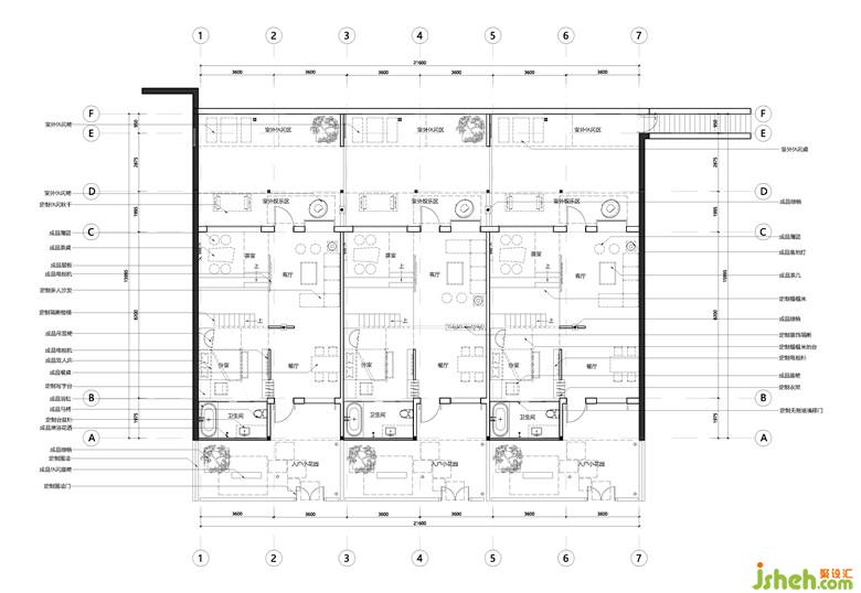
踏青石板路而来,叩开木门,酒店设计在原木青砖的古朴世界中品味素雅和野趣的同时又能享受乡间贴近自然的生活与居住状态。


