项目名称:穿梭·智能生活体验馆
设计方:平介设计
项目设计&完成年份:2019
主创及设计团队:黄迪
项目地址:上海
建筑面积:108m2
摄影版权:姚杰奇
客户:扬子智能家居
合作方:苏州再造设计
所谓空间智能化并不是指有单一终端控制下的智能单品集合,而是利用综合布线、网络通信、 安全防范、自动控制、音视频等技术类别,将生活有关的设施集成,构建高效的管理系统工程,它是建立在自动化和信息化基础上的更高层级的控制方式,实现人与产品间更复杂多元化的沟通,从而提升使用的舒适度及人性化设计,面向未来,展现高科技的魅力,是可以满足私人定制、任意组合的一体化服务体系。
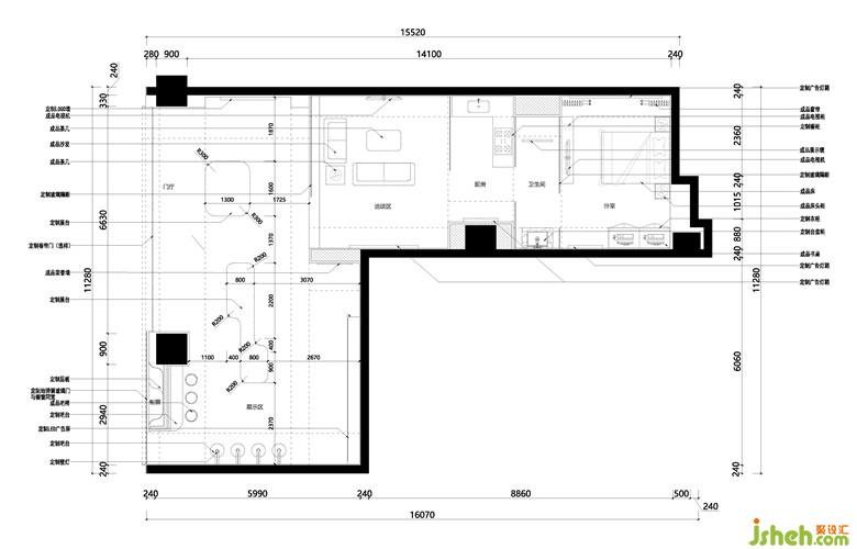
该项目位于上海市陆家嘴尚悦湾广场,作为陆家嘴滨江金融城的城市规划重要板块,商场处于周边多个的金融区CBD之中。店铺面积约为108平方米,是一家智能家居体验馆,其品牌提供了高科技人性化的现代智能家居产品及智能控制策略。
基于“智能生活”的定位与产品展陈体验的根本诉求,我们提出“模块空间”的设计理念,以“圆角模块”作为体验功能空间的基本载体,将形式统一,功能各异的空间块嵌套排列来组织线性空间,使功能排布层次明晰且科学理性。
在对空间进行功能性与人群使用习惯分析的基础上,我们模块化后的空间进行了重新组织:展示橱窗位于入口一侧,对外让出开阔的视觉界面,对内则形成一部分相对私密空间,使得品牌形象区和会客区得以根据视线关系合理分布;陈列区展台满足产品展示需求的同时,贯彻弧度线条柔化边界,进行错位放置,一定程度上也起到限定空间、暗示空间动线的作用;对于“穿梭”的主体——体验区进行合理扩充,并且将视觉效果最佳的客厅排布在第一界面上,创造极具视觉冲击力的入口体验。
装修公司
由于空间面积有限且平面本身形状较为特殊,依照传统家居体验馆模拟真实家居环境的模式极易造成功能分布混乱且尺度失调。其次,考虑到体验者各自的家庭内饰风格、个性、审美特质等等均存在差异性,尝试模拟真实环境的设计反而容易适得其反,产生陌生疏离感。因此,布局上将单个家居场景与线性的体验流线相结合,按照私密性由弱到强的顺序,依次从外而内布置客厅、厨房、洗手间、卧室,使顾客得以在场景模块间“穿梭”,不同场景中的各个产品的特性、优势及使用方法也随之得到理性且明确的传达。
吧台洽谈区主要针对购买意向较强顾客,用于顾客与店员深入交流产品信息及购买意向。吧台置于平面一角,借助橱窗的遮挡,在店内创造了一处相对私密的空间。
场景体验区地面抬高两级台阶,构建领域感与进入的仪式感。展示单元间以电控玻璃做隔断,因而店员可在客厅处通过功能总控面板向顾客演示全套产品的一体化联动效果。
