欢迎光临聚设汇,装修找设计就上聚设汇!
   咨询电话:15602987227
登录    注册
聚设汇
首页 > 家装 > 光景

光景

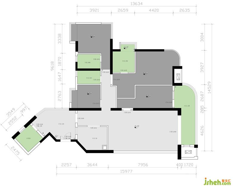
卫生间设计了双台盆满足两个人同时使用,浴缸设在靠窗的位置方便屋主欣赏窗外的江景别有一番趣味。

室内设计师

室内设计师

业主是三口之家,同父母一同居住,喜欢简单略带个性的空间布局,想要开阔的空间不喜欢厨房的布局没有采光和通风,要大量的储物空间以及可以健身娱乐的休闲区域。

重庆得舍装饰设计有限公司 设计总监

设计收费:300 元/平             

擅长类型: 家装,豪宅

在线咨询

扫描二维码关注我们的微信

深圳市聚设汇文化传媒有限公司
主编热线:15602987227
总部:深圳市罗湖区梨园路128号宝能汽车大楼416单元
佛山、东莞、成都、重庆、福州、厦门、南昌、武汉、
杭州、苏州、温州、郑州、长春、沈阳、贵阳、柳州、
哈尔滨、九江等城市设立办事处
© 2017-2021 Jsheh.com 版权所有 粤ICP备17079093号
展开
回到顶部