欢迎光临聚设汇,装修找设计就上聚设汇!
   咨询电话:15602987227
登录    注册
聚设汇
首页 > 家装 > 窗明几净

窗明几净

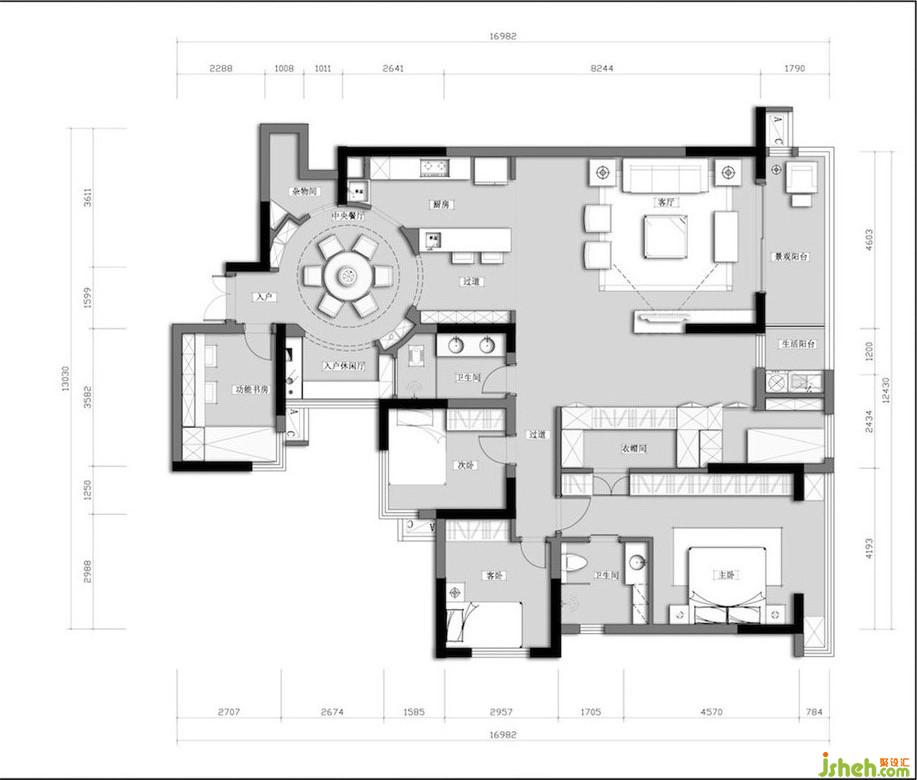
亲子空间设计了一长壁柜子,其中两边的柜子供亲子空间使用来放置儿童的玩具和杂物,中间的柜子则和主卧室的衣帽间连在一起供主卧室使用,其次柜子的最右侧设计了一扇暗门进去则是保姆临时休息的空间,室内设计师这样的设计即弱化了保姆房的存在同时也方便保姆照顾孩子的起居,这样一面看似简单的柜子实则暗藏玄机给业主的生活也带来了很多乐趣。做有趣味性的空间设计生活也随之而变得更加美好。

室内设计师

重庆得舍装饰设计有限公司 设计总监

设计收费:300 元/平             

擅长类型: 家装,豪宅

在线咨询

扫描二维码关注我们的微信

深圳市聚设汇文化传媒有限公司
主编热线:15602987227
总部:深圳市罗湖区梨园路128号宝能汽车大楼416单元
佛山、东莞、成都、重庆、福州、厦门、南昌、武汉、
杭州、苏州、温州、郑州、长春、沈阳、贵阳、柳州、
哈尔滨、九江等城市设立办事处
© 2017-2021 Jsheh.com 版权所有 粤ICP备17079093号
展开
回到顶部