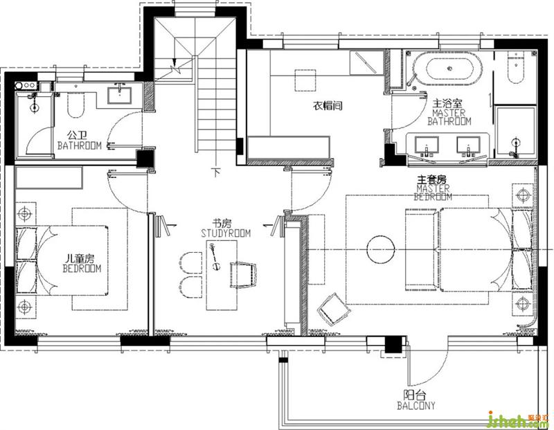
享有独立衣帽间的儒雅居室便是主卧空间,一窗、一门、一画皆与历史岁月的长河相契合,中性的棕色色调铺底,充满传统文化的精致摆件,藏蓝色的点缀,卧室带给使用者永恒的平静与安宁。


书房窗明几净,宽敞舒怡,四季景象依附窗台墙上,样板间设计空间激发着生活无限的生机与可能,充足的阳光搭配柔和的色调,宣纸上笔触的跳跃是空间赋予居者最真实的情感。

儿童房采用瓷器主题营造一个具有中国文化特色的儿童空间,同样也是一种中国传统文化的传播与传承。蓝色与红色的冲突对撞、刻意规避传统空间单一化表达的乏味,陶瓷、脸谱与摆件的置入,趣意盎然,摹刻出情景感十足的画面。

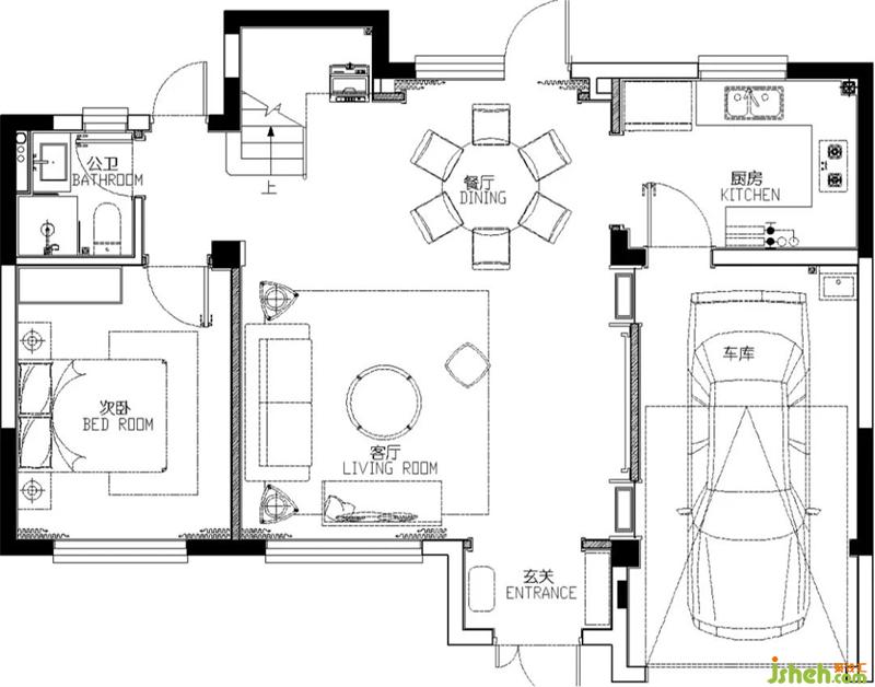
平面图▼
▲一层空间
▲二层空间
更多样板间设计请关注