项目名称 | 东莞道滘 · 阳光城翡丽湾样板间
项目地址 | 广东 东莞
开 发 商 | 阳光城地产
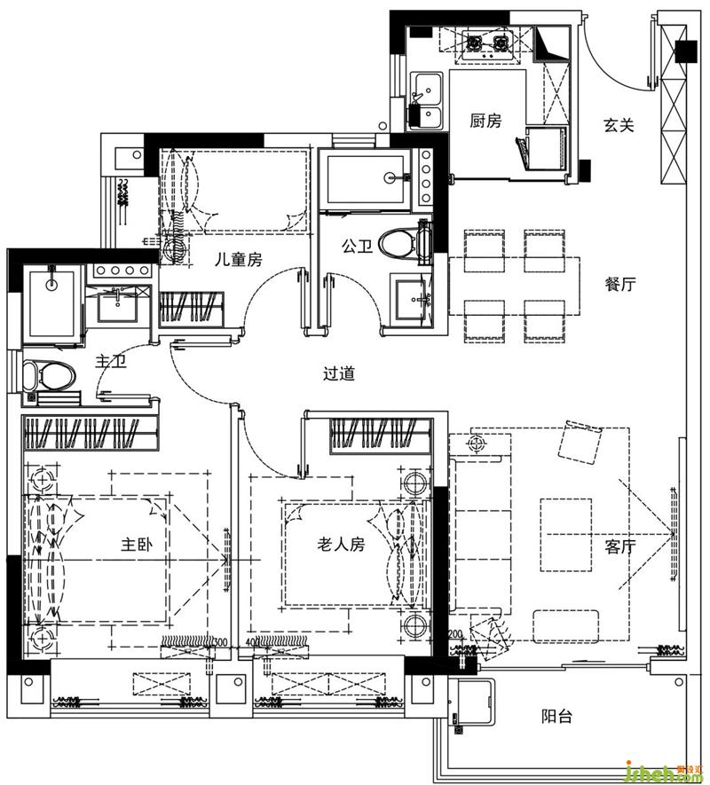
项目面积 | 95㎡
软装设计 | 树美深圳设计中心
设计团队 | 郑颖、彭柯麟、郑媛媛、李文婷
灯光产品设计 | 宽窄灯具设计制造
完工时间 | 2021年06月
项目摄影 | 南木摄影
本期项目雄踞道滘城央商政核心,前有西部干道连接万道路,周边配套一应俱全,拥有娱乐、餐饮、超市、银行、学校、医院等各项生活配套设施,项目自身配备大规模商业街,集美食、娱乐、购物等多种功能于一体。
95户型我们定位也是:三口之家。男主为31岁,摄影师,有自己的工作室,有浓厚的艺术气息;女主28岁,平面模特,喜欢健康的生活态度。他们有个4岁的儿子,活泼开朗,喜欢太空星球。
在恬静优雅的慢生活里思考生活的艺术,在舒适简单的空间里感受生活的张力。我们从视觉感官出发,样板房设计以暖灰色为主色调,用暖黄色金色橘色作为点缀,勾勒出现代优雅的舒适空间。

客厅空间运用大面积留白处理,大理石墙面以及硬装基础的空间线条,让自然之色充盈流通于空间之中,搭配家具饰品及花艺的色彩,还原家的自然本身。

餐厅空间展现朴实不华之美,装饰挂画利落大方,装饰花艺与餐具将家的温馨感点亮,让美好的用餐时光更添一份温度感。


